
High-speed feeder head with adaptive paper adjustment capability.

Equipped with gas spring support and slowdown mechanism for sheet feeding at the front gauge, it integrates with the paper feeding frame for unified adjustment of the feeding rollers, enabling rapid and convenient tuning.

High-precision imported intermittent splitter, capable of maintaining high positioning accuracy even after long-term use.

Main collecting device and Auto non-stop roll-up type auxiliary collecting device switch automatically without any operation, significantly enhancing productivity.

The whole machine adopts a centralized automatic oil supply system to ensure that the transmission parts are not short of oil.
| Conveying Unit | MHC-1060 |
| 01. Non-stop high-speed paper feeding section | 〇 |
| 02. Fish-scale powerful paper suction feeder head with 4 suction and 4 delivery. The suction head can be adjust to various suction angles according to the deformation of the paper | 〇 |
| 03. Adjustable suction blower, suction head and air separation valve processed with ultra-hard alloy | 〇 |
| 04. Triple feeder head anti-collision device | 〇 |
| 05. Horizontal paper separation blower | 〇 |
| 06. The main and auxiliary stacking tables alternate without stopping, and the feeder operates without stopping | 〇 |
| 07. Electrical left/right fine-tuning device for the main feed pile | 〇 |
| 08. The pre-stacking device is equipped with rails so that the operator can accurately and conveniently send the stack of paper into the feeder | 〇 |
| 09. The paper alignment adjustment device can manually adjust the distance before the paper reaches the gauge without stopping the machine | 〇 |
| 10. Large inclined paper table, suitable for high-speed conveying of thin paper and curved paper | 〇 |
| 11. Push-pull dual-purpose side gauges, one set for the operation side and one set for the transmission side. Side gauges can be adjusted between push-pull gauges to meet different paper requirements | 〇 |
| 12. Photoelectric detection of side gauge and front gauge | 〇 |
| 13. Slowdown mechanism for sheet feeding at the front gauge | 〇 |
| 14. Electromechanical double sheet detector | 〇 |
| 15. Imported paper feeding belt and stainless steel transfer plate | 〇 |
| 16. Pneumatic lifting device for paper feeding frame | 〇 |
| 17. Single-point clutch: The conveying part and the main machine part can be separated and synchronously combined at any time, which simplifies and facilitates the operation sequence. Regardless of proofing, pressure testing, etc., the conveying part can be separated and closed as desired | 〇 |
| 18. PLC and electronic cam control the timing of the whole machine | 〇 |
| 19. Blow-suction dual-purpose vacuum pump of German Becker brand | 〇 |
| Die-cutting Unit | |
| 01. The entire machine casting is made of QT-700-2 nodular cast iron | 〇 |
| 02. Imported worm gear, worm gear and 40cr crankshaft | 〇 |
| 03. A complete set of imported anodized aluminum alloy gripper bars and positioning structure. The gripper bars adopt an adjustable gripper bar structure | 〇 |
| 04. Imported main drive chain | 〇 |
| 05. Imported intermittent splitter | 〇 |
| 06. Imported synchronous belt and pulley drive | 〇 |
| 07. Imported pneumatic clutch brake device | 〇 |
| 08. Pressure regulating device, which can realize accurate control of pressure through PLC touch screen buttons | 〇 |
| 09. Die-cutting pressure is measured directly and accurately by deformation measuring device and displayed on the human-machine interface. | 〇 |
| 10. Die-cutting base plate and die mould rotary device | 〇 |
| 11. The connection between the die cutting plate and the chase adopts the form of grasping snail and screws, adopt central positioning system, which is fast and accurate | 〇 |
| 12. The die-cutting chase and the lower mat are locked by the Japan SMC gas regulator, which can prevent improper locking of the upper frame caused by human error during installation | 〇 |
| 13. Japan SMC air pressure detection device, low air pressure alarm | 〇 |
| 14. Equipped with an air storage tank to ensure the stability of the air pressure of the whole machine | 〇 |
| 15. The whole machine adopts a centralized automatic oil supply system to ensure that the transmission parts are not short of oil | 〇 |
| Delivery Unit | |
| 01. Roll-up curtain type auxiliary paper delivery device, can realize non-stop paper delivery | 〇 |
| 02. Adjustable mechanical paper delivery brush press mechanism to help gripper bar discharge and stack paper | 〇 |
| 03. Paper delivery alignment device | 〇 |
| 04. Photoelectric detection of upper and lower limit switches can effectively prevent the paper stacking table from excessive paper pile stacking and paper curling up | 〇 |
| 05. The two-way auxiliary air blowing for paper delivery and the manual sampling mechanism make the operation convenient | 〇 |
| 06. Spring chain adjustment device: Adjusting the tension of spring chain can reduce the inertia impact during the steerings of the gripper bar, and maintain the balanced tension of the chain | 〇 |
| Electric Unit | |
| 01. Self-developed PLC control system(Invention Patent) | 〇 |
| 02. The die-cutting unit adopts 10.4-inch touch display screens | 〇 |
| 03. The machine adopts Germany Moeller brand relays, AC contactors, air switches and buttons, to ensure the stability and reliability of electrical parts | 〇 |
| 04. The machine adopts Japanese Omron brand photoelectric switch, optical fiber, encoder and sensor, to ensure the accuracy and stability of electrical detection of each part of the action | 〇 |
Note: This allocation sheet is for reference only, the formal allocation sheet is subject to the contract. Standard configuration: 〇; Optional: △
| Model | MHC-1060 |
| Max. Sheet Size | 1080×780mm |
| Min. Sheet Size | 400×350mm |
| Max. Cutting Size | 1060×760mm |
| Min. Gripper Margin | 9-17mm |
| Cutting Rule Height | 23.8mm |
| Inner Chase Size | 1120×786mm |
| Stock Range | Cardboard: 80-2000g/m2, 0.1-2mm Corrugated board: ≤4mm |
| Die Cutting Accuracy | ≤±0.1mm |
| Max. Die Cutting Force | 300T |
| Max. Working Speed | 7500s/h |
| Max. Feeder Pile Height | 1600mm (With pallet) |
| Max. Delivery Pile Height | 1400mm (With pallet) |
| Main Motor Wattage | 11KW |
| Full Load Wattage | 16.9KW |
| Air Requirement | Pressure: 0.6-0.7Mpa, Flow: ≥0.37m3/min |
| Net Weight of Machine | 16.5T |
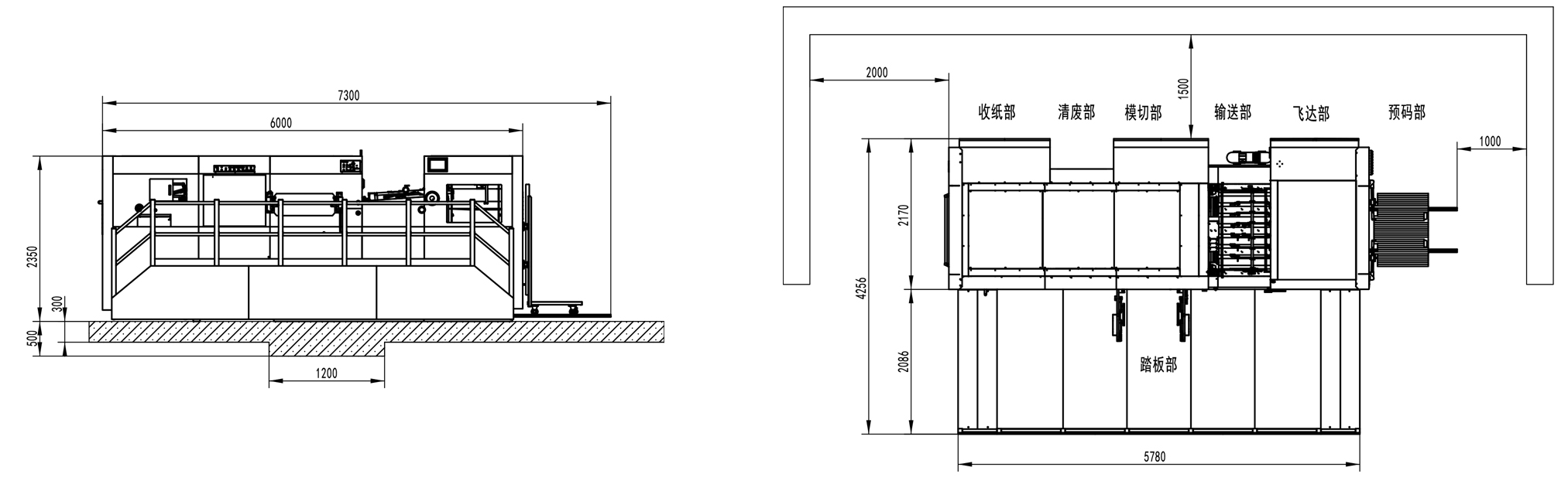
| Machine Dimensions | 6300×4256×2350mm (L×W×H) (L: paper prepared track included, W: platform included) |


High-speed feeder head with adaptive paper adjustment capability.

Equipped with gas spring support and slowdown mechanism for sheet feeding at the front gauge, it integrates with the paper feeding frame for unified adjustment of the feeding rollers, enabling rapid and convenient tuning.

High-precision imported intermittent splitter, capable of maintaining high positioning accuracy even after long-term use.

The stripping plate is installed using a centerline quick-positioning method, enabling operators to mount it rapidly and improve changeover efficiency.

Main collecting device and Auto non-stop roll-up type auxiliary collecting device switch automatically without any operation, significantly enhancing productivity.

The whole machine adopts a centralized automatic oil supply system to ensure that the transmission parts are not short of oil.
| Conveying Unit | MHC-1060CE |
| 01. Non-stop high-speed paper feeding section | 〇 |
| 02. Fish-scale powerful paper suction feeder head with 4 suction and 4 delivery. The suction head can be adjust to various suction angles according to the deformation of the paper | 〇 |
| 03. Adjustable suction blower, suction head and air separation valve processed with ultra-hard alloy | 〇 |
| 04. Triple feeder head anti-collision device | 〇 |
| 05. Horizontal paper separation blower | 〇 |
| 06. The main and auxiliary stacking tables alternate without stopping, and the feeder operates without stopping | 〇 |
| 07. Electrical left/right fine-tuning device for the main feed pile | 〇 |
| 08. The pre-stacking device is equipped with rails so that the operator can accurately and conveniently send the stack of paper into the feeder | 〇 |
| 09. The paper alignment adjustment device can manually adjust the distance before the paper reaches the gauge without stopping the machine | 〇 |
| 10. Large inclined paper table, suitable for high-speed conveying of thin paper and curved paper | 〇 |
| 11. Push-pull dual-purpose side gauges, one set for the operation side and one set for the transmission side. Side gauges can be adjusted between push-pull gauges to meet different paper requirements | 〇 |
| 12. Photoelectric detection of side gauge and front gauge | 〇 |
| 13. Slowdown mechanism for sheet feeding at the front gauge | 〇 |
| 14. Electromechanical double sheet detector | 〇 |
| 15. Imported paper feeding belt and stainless steel transfer plate | 〇 |
| 16. Pneumatic lifting device for paper feeding frame | 〇 |
| 17. Single-point clutch: The conveying part and the main machine part can be separated and synchronously combined at any time, which simplifies and facilitates the operation sequence. Regardless of proofing, pressure testing, etc., the conveying part can be separated and closed as desired | 〇 |
| 18. PLC and electronic cam control the timing of the whole machine | 〇 |
| 19. Blow-suction dual-purpose vacuum pump of German Becker brand | 〇 |
| Die-cutting Unit | |
| 01. The entire machine casting is made of QT-700-2 nodular cast iron | 〇 |
| 02. Imported worm gear, worm gear and 40cr crankshaft | 〇 |
| 03. A complete set of imported anodized aluminum alloy gripper bars and positioning structure. The gripper bars adopt an adjustable gripper bar structure | 〇 |
| 04. Imported main drive chain | 〇 |
| 05. Imported intermittent splitter | 〇 |
| 06. Imported synchronous belt and pulley drive | 〇 |
| 07. Imported pneumatic clutch brake device | 〇 |
| 08. Pressure regulating device, which can realize accurate control of pressure through PLC touch screen buttons | 〇 |
| 09. Die-cutting pressure is measured directly and accurately by deformation measuring device and displayed on the human-machine interface. | 〇 |
| 10. Die-cutting base plate and die mould rotary device | 〇 |
| 11. The connection between the die cutting plate and the chase adopts the form of grasping snail and screws, adopt central positioning system, which is fast and accurate | 〇 |
| 12. The die-cutting chase and the lower mat are locked by the Japan SMC gas regulator, which can prevent improper locking of the upper frame caused by human error during installation | 〇 |
| 13. Japan SMC air pressure detection device, low air pressure alarm | 〇 |
| 14. Equipped with an air storage tank to ensure the stability of the air pressure of the whole machine | 〇 |
| 15. The whole machine adopts a centralized automatic oil supply system to ensure that the transmission parts are not short of oil | 〇 |
| Stripping Unit (Three frames) | |
| 01. Upper waste transmission mechanism | 〇 |
| 02. Users can choose whether to use the stripping function by lifting upper stripping frame | 〇 |
| 03. Intermediate negative stripping transmission mechanism | 〇 |
| 04. Lower stripping transmission mechanism | 〇 |
| 05. The installation of the middle stripping board adopts the center line quick positioning installation method, enabling the operators to install the stripping board quickly and improving the plate changing efficiency | 〇 |
| Delivery Unit | |
| 01. Roll-up curtain type auxiliary paper delivery device, can realize non-stop paper delivery | 〇 |
| 02. Adjustable mechanical paper delivery brush press mechanism to help gripper bar discharge and stack paper | 〇 |
| 03. Paper delivery alignment device | 〇 |
| 04. Photoelectric detection of upper and lower limit switches can effectively prevent the paper stacking table from excessive paper pile stacking and paper curling up | 〇 |
| 05. The two-way auxiliary air blowing for paper delivery and the manual sampling mechanism make the operation convenient | 〇 |
| 06. Spring chain adjustment device: Adjusting the tension of spring chain can reduce the inertia impact during the steerings of the gripper bar, and maintain the balanced tension of the chain | 〇 |
| Electric Unit | |
| 01. Self-developed PLC control system(Invention Patent) | 〇 |
| 02. The die-cutting unit adopts 10.4-inch touch display screens | 〇 |
| 03. The machine adopts Germany Moeller brand relays, AC contactors, air switches and buttons, to ensure the stability and reliability of electrical parts | 〇 |
| 04. The machine adopts Japanese Omron brand photoelectric switch, optical fiber, encoder and sensor, to ensure the accuracy and stability of electrical detection of each part of the action | 〇 |
Note: This allocation sheet is for reference only, the formal allocation sheet is subject to the contract. Standard configuration: 〇; Optional: △
| Model | MHC-1060CE |
| Max. Sheet Size | 1080×780mm |
| Min. Sheet Size | 400×350mm |
| Max. Cutting Size | 1060×760mm |
| Min. Gripper Margin | 9-17mm |
| Min. Width of Cuts | 10-18mm |
| Cutting Rule Height | 23.8mm |
| Inner Chase Size | 1120×786mm |
| Stock Range | Cardboard: 80-2000g/m2,0.1-2mm Corrugated board: ≤4mm |
| Die Cutting Accuracy | ≤±0.1mm |
| Max. Die Cutting Force | 300T |
| Max. Working Speed | 7500s/h |
| Max. Feeder Pile Height | 1600mm (With pallet) |
| Max. Delivery Pile Height | 1400mm (With pallet) |
| Main Motor Wattage | 11KW |
| Full Load Wattage | 18KW |
| Air Requirement | Pressure: 0.6-0.7Mpa, Flow: ≥0.37m3/min |
| Net Weight of Machine | 17.5T |
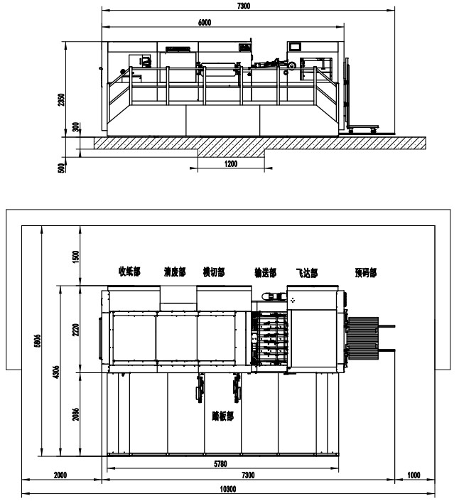
| Machine Dimensions | 7300×4256×2350mm(L×W×H) (L: paper prepared track included, W: platform included) |


High-speed feeder head with adaptive paper adjustment capability.

Equipped with gas spring support and slowdown mechanism for sheet feeding at the front gauge, it integrates with the paper feeding frame for unified adjustment of the feeding rollers, enabling rapid and convenient tuning.

High-precision imported intermittent splitter, capable of maintaining high positioning accuracy even after long-term use.

Automatic oil pumping circulation cooling device ensures the lubrication of the main machine during long-term high-speed operation and maintains the normal temperature of the lubricating oil of the main machine.

Main collecting device and Auto non-stop roll-up type auxiliary collecting device switch automatically without any operation, significantly enhancing productivity.

The whole machine adopts a centralized automatic oil supply system to ensure that the transmission parts are not short of oil.
| Conveying Unit | MHC-1060A |
| 01. Non-stop high-speed paper feeding section | 〇 |
| 02. Fish-scale powerful paper suction feeder head with 4 suction and 4 delivery. The suction head can be adjust to various suction angles according to the deformation of the paper | 〇 |
| 03. Adjustable suction blower, suction head and air separation valve processed with ultra-hard alloy | 〇 |
| 04. Triple feeder head anti-collision device | 〇 |
| 05. Horizontal paper separation blower | 〇 |
| 06. The main and auxiliary stacking tables alternate without stopping, and the feeder operates without stopping | 〇 |
| 07. Electrical left/right fine-tuning device for the main feed pile | 〇 |
| 08. The pre-stacking device is equipped with rails so that the operator can accurately and conveniently send the stack of paper into the feeder | 〇 |
| 09. The paper alignment adjustment device can manually adjust the distance before the paper reaches the gauge without stopping the machine | 〇 |
| 10. Large inclined paper table, suitable for high-speed conveying of thin paper and curved paper | 〇 |
| 11. Push-pull dual-purpose side gauges, one set for the operation side and one set for the transmission side. Side gauges can be adjusted between push-pull gauges to meet different paper requirements | 〇 |
| 12. Photoelectric detection of side gauge and front gauge | 〇 |
| 13. Slowdown mechanism for sheet feeding at the front gauge | 〇 |
| 14. Electromechanical double sheet detector | 〇 |
| 15. Imported paper feeding belt and stainless steel transfer plate | 〇 |
| 16. Pneumatic lifting device for paper feeding frame | 〇 |
| 17. Single-point clutch: The conveying part and the main machine part can be separated and synchronously combined at any time, which simplifies and facilitates the operation sequence. Regardless of proofing, pressure testing, etc., the conveying part can be separated and closed as desired | 〇 |
| 18. PLC and electronic cam control the timing of the whole machine | 〇 |
| 19. Blow-suction dual-purpose vacuum pump of German Becker brand | 〇 |
| Die-cutting Unit | |
| 01. The entire machine casting is made of QT-700-2 nodular cast iron | 〇 |
| 02. Imported worm gear, worm gear and 40cr crankshaft | 〇 |
| 03. A complete set of imported anodized aluminum alloy gripper bars and positioning structure. The gripper bars adopt an adjustable gripper bar structure | 〇 |
| 04. Imported main drive chain | 〇 |
| 05. Imported intermittent splitter | 〇 |
| 06. Imported synchronous belt and pulley drive | 〇 |
| 07. Imported pneumatic clutch brake device | 〇 |
| 08. Pressure regulating device, which can realize accurate control of pressure through PLC touch screen buttons | 〇 |
| 09. Die-cutting pressure is measured directly and accurately by deformation measuring device and displayed on the human-machine interface. | 〇 |
| 10. Die-cutting base plate and die mould rotary device | 〇 |
| 11. The connection between the die cutting plate and the chase adopts the form of grasping snail and screws, adopt central positioning system, which is fast and accurate | 〇 |
| 12. The die-cutting chase and the lower mat are locked by the Japan SMC gas regulator, which can prevent improper locking of the upper frame caused by human error during installation | 〇 |
| 13. Japan SMC air pressure detection device, low air pressure alarm | 〇 |
| 14. Equipped with an air storage tank to ensure the stability of the air pressure of the whole machine | 〇 |
| 15. The whole machine adopts a centralized automatic oil supply system to ensure that the transmission parts are not short of oil | 〇 |
| 16. Automatic oil pumping circulation cooling device ensures the lubrication of the main machine during long-term high-speed operation and maintains the normal temperature of the lubricating oil of the main machine. | 〇 |
| Delivery Unit | |
| 01. Roll-up curtain type auxiliary paper delivery device, can realize non-stop paper delivery | 〇 |
| 02. Adjustable mechanical paper delivery brush press mechanism to help gripper bar discharge and stack paper | 〇 |
| 03. Paper delivery alignment device | 〇 |
| 04. Photoelectric detection of upper and lower limit switches can effectively prevent the paper stacking table from excessive paper pile stacking and paper curling up | 〇 |
| 05. The two-way auxiliary air blowing for paper delivery and the manual sampling mechanism make the operation convenient | 〇 |
| 06. Spring chain adjustment device: Adjusting the tension of spring chain can reduce the inertia impact during the steerings of the gripper bar, and maintain the balanced tension of the chain | 〇 |
| Electric Unit | |
| 01. Self-developed PLC control system(Invention Patent) | 〇 |
| 02. The die-cutting unit adopts 10.4-inch touch display screens | 〇 |
| 03. The machine adopts Germany Moeller brand relays, AC contactors, air switches and buttons, to ensure the stability and reliability of electrical parts | 〇 |
| 04. The machine adopts Japanese Omron brand photoelectric switch, optical fiber, encoder and sensor, to ensure the accuracy and stability of electrical detection of each part of the action | 〇 |
Note: This allocation sheet is for reference only, the formal allocation sheet is subject to the contract. Standard configuration: 〇; Optional: △
| Model | MHC-1060A |
| Max. Sheet Size | 1080×780mm |
| Min. Sheet Size | 400×350mm |
| Max. Cutting Size | 1060×760mm |
| Min. Gripper Margin | 9-17mm |
| Cutting Rule Height | 23.8mm |
| Inner Chase Size | 1120×786mm |
| Stock Range | Cardboard: 80-2000g/m2, 0.1-2mm Corrugated board: ≤4mm |
| Die Cutting Accuracy | ≤±0.1mm |
| Max. Die Cutting Force | 600T |
| Max. Working Speed | 7500s/h |
| Max. Feeder Pile Height | 1600mm (With pallet) |
| Max. Delivery Pile Height | 1400mm (With pallet) |
| Main Motor Wattage | 15KW |
| Full Load Wattage | 21KW |
| Air Requirement | Pressure: 0.6-0.7Mpa, Flow: ≥0.37m3/min |
| Net Weight of Machine | 19T |
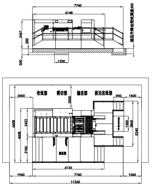
| Machine Dimensions | 6300×4306×2350mm(L×W×H) (L: paper prepared track included, W: platform included) |


High-speed feeder head with adaptive paper adjustment capability.

Equipped with gas spring support and slowdown mechanism for sheet feeding at the front gauge, it integrates with the paper feeding frame for unified adjustment of the feeding rollers, enabling rapid and convenient tuning.

High-precision imported intermittent splitter, capable of maintaining high positioning accuracy even after long-term use.

Automatic oil pumping circulation cooling device ensures the lubrication of the main machine during long-term high-speed operation and maintains the normal temperature of the lubricating oil of the main machine.

The stripping plate is installed using a centerline quick-positioning method, enabling operators to mount it rapidly and improve changeover efficiency.

Main collecting device and Auto non-stop roll-up type auxiliary collecting device switch automatically without any operation, significantly enhancing productivity.

The whole machine adopts a centralized automatic oil supply system to ensure that the transmission parts are not short of oil.
| Conveying Unit | MHC-1060ACE |
| 01. Non-stop high-speed paper feeding section | 〇 |
| 02. Fish-scale powerful paper suction feeder head with 4 suction and 4 delivery. The suction head can be adjust to various suction angles according to the deformation of the paper | 〇 |
| 03. Adjustable suction blower, suction head and air separation valve processed with ultra-hard alloy | 〇 |
| 04. Triple feeder head anti-collision device | 〇 |
| 05. Horizontal paper separation blower | 〇 |
| 06. The main and auxiliary stacking tables alternate without stopping, and the feeder operates without stopping | 〇 |
| 07. Electrical left/right fine-tuning device for the main feed pile | 〇 |
| 08. The pre-stacking device is equipped with rails so that the operator can accurately and conveniently send the stack of paper into the feeder | 〇 |
| 09. The paper alignment adjustment device can manually adjust the distance before the paper reaches the gauge without stopping the machine | 〇 |
| 10. Large inclined paper table, suitable for high-speed conveying of thin paper and curved paper | 〇 |
| 11. Push-pull dual-purpose side gauges, one set for the operation side and one set for the transmission side. Side gauges can be adjusted between push-pull gauges to meet different paper requirements | 〇 |
| 12. Photoelectric detection of side gauge and front gauge | 〇 |
| 13. Slowdown mechanism for sheet feeding at the front gauge | 〇 |
| 14. Electromechanical double sheet detector | 〇 |
| 15. Imported paper feeding belt and stainless steel transfer plate | 〇 |
| 16. Pneumatic lifting device for paper feeding frame | 〇 |
| 17. Single-point clutch: The conveying part and the main machine part can be separated and synchronously combined at any time, which simplifies and facilitates the operation sequence. Regardless of proofing, pressure testing, etc., the conveying part can be separated and closed as desired | 〇 |
| 18. PLC and electronic cam control the timing of the whole machine | 〇 |
| 19. Blow-suction dual-purpose vacuum pump of German Becker brand | 〇 |
| Die-cutting Unit | |
| 01. The entire machine casting is made of QT-700-2 nodular cast iron | 〇 |
| 02. Imported worm gear, worm gear and 40cr crankshaft | 〇 |
| 03. A complete set of imported anodized aluminum alloy gripper bars and positioning structure. The gripper bars adopt an adjustable gripper bar structure | 〇 |
| 04. Imported main drive chain | 〇 |
| 05. Imported intermittent splitter | 〇 |
| 06. Imported synchronous belt and pulley drive | 〇 |
| 07. Imported pneumatic clutch brake device | 〇 |
| 08. Pressure regulating device, which can realize accurate control of pressure through PLC touch screen buttons | 〇 |
| 09. Die-cutting pressure is measured directly and accurately by deformation measuring device and displayed on the human-machine interface. | 〇 |
| 10. Die-cutting base plate and die mould rotary device | 〇 |
| 11. The connection between the die cutting plate and the chase adopts the form of grasping snail and screws, adopt central positioning system, which is fast and accurate | 〇 |
| 12. The die-cutting chase and the lower mat are locked by the Japan SMC gas regulator, which can prevent improper locking of the upper frame caused by human error during installation | 〇 |
| 13. Japan SMC air pressure detection device, low air pressure alarm | 〇 |
| 14. Equipped with an air storage tank to ensure the stability of the air pressure of the whole machine | 〇 |
| 15. The whole machine adopts a centralized automatic oil supply system to ensure that the transmission parts are not short of oil | 〇 |
| 16. Automatic oil pumping circulation cooling device ensures the lubrication of the main machine during long-term high-speed operation and maintains the normal temperature of the lubricating oil of the main machine. | 〇 |
| Stripping Unit | |
| 01. Upper waste transmission mechanism | 〇 |
| 02. Users can choose whether to use the stripping function by lifting upper stripping frame | 〇 |
| 03. Intermediate negative stripping transmission mechanism | 〇 |
| 04. Lower stripping transmission mechanism | 〇 |
| 05. The installation of the middle stripping board adopts the center line quick positioning installation method, enabling the operators to install the stripping board quickly and improving the plate changing efficiency | 〇 |
| Delivery Unit | |
| 01. Roll-up curtain type auxiliary paper delivery device, can realize non-stop paper delivery | 〇 |
| 02. Adjustable mechanical paper delivery brush press mechanism to help gripper bar discharge and stack paper | 〇 |
| 03. Paper delivery alignment device | 〇 |
| 04. Photoelectric detection of upper and lower limit switches can effectively prevent the paper stacking table from excessive paper pile stacking and paper curling up | 〇 |
| 05. The two-way auxiliary air blowing for paper delivery and the manual sampling mechanism make the operation convenient | 〇 |
| 06. Spring chain adjustment device: Adjusting the tension of spring chain can reduce the inertia impact during the steerings of the gripper bar, and maintain the balanced tension of the chain | 〇 |
| Electric Unit | |
| 01. Self-developed PLC control system(Invention Patent) | 〇 |
| 02. The die-cutting unit adopts 10.4-inch touch display screens | 〇 |
| 03. The machine adopts Germany Moeller brand relays, AC contactors, air switches and buttons, to ensure the stability and reliability of electrical parts | 〇 |
| 04. The machine adopts Japanese Omron brand photoelectric switch, optical fiber, encoder and sensor, to ensure the accuracy and stability of electrical detection of each part of the action | 〇 |
Note: This allocation sheet is for reference only, the formal allocation sheet is subject to the contract. Standard configuration: 〇; Optional: △
| Model | MHC-1060ACE |
| Max. Sheet Size | 1080×780mm |
| Min. Sheet Size | 400×350mm |
| Max. Cutting Size | 1060×760mm |
| Min. Gripper Margin | 9-17mm |
| Min. Width of Cuts | 10-18mm |
| Cutting Rule Height | 23.8mm |
| Inner Chase Size | 1120×786mm |
| Stock Range | Cardboard: 80-2000g/m2,0.1-2mm Corrugated board: ≤4mm |
| Die Cutting Accuracy | ≤±0.1mm |
| Max. Die Cutting Force | 600T |
| Max. Working Speed | 7500s/h |
| Max. Feeder pile height | 1600mm (With pallet) |
| Max. Delivery pile height | 1400mm (With pallet) |
| Main Motor Wattage | 15KW |
| Full Load Wattage | 21KW |
| Air Requirement | Pressure: 0.6-0.7Mpa, Flow: ≥0.37m3/min |
| Net Weight of Machine | 20T |
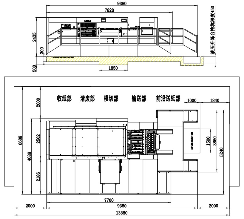
| Machine Dimensions | 7300×4306×2350mm(L×W×H) (L: paper prepared track included, W: platform included) |

The MHC-1060AR/1080AR Automatic Die Cutting Machine with Heating System is key equipment for printing finishing such as die cut, crease and embossing etc. Unique drive gears are adopted such as high-precision indexing mechanism, pneumatic closed up, pneumatic clutch, overload protection, automatic compression relief etc, to ensure stable and high speed running of the machine. This machine is equipped with practical and reliable mechanism such as pre-stack device, secondary delivery mechanisms, manual sampling, etc, which ensure the excellent performance of the machine. Electrical components and driving elements of internationally known brands to ensure die cutting precision and reliability of running. Also man-machine interface is able to monitor machine running status, troubleshooting and indicating relevant help information which fully actualized man-machine communication.


High-speed feeder head with adaptive paper adjustment capability.

Equipped with gas spring support and slowdown mechanism for sheet feeding at the front gauge, it integrates with the paper feeding frame for unified adjustment of the feeding rollers, enabling rapid and convenient tuning.

High-precision imported intermittent splitter, capable of maintaining high positioning accuracy even after long-term use.

20-Zone Independent Temperature Control System ensures precise heating of the hot stamping plate, delivering balanced and stable temperature distribution across the entire heating system. Maximum stamping pressure reaches 600 tons.

Automatic oil pumping circulation cooling device ensures the lubrication of the main machine during long-term high-speed operation and maintains the normal temperature of the lubricating oil of the main machine.

Main collecting device and Auto non-stop roll-up type auxiliary collecting device switch automatically without any operation, significantly enhancing productivity.

The whole machine adopts a centralized automatic oil supply system to ensure that the transmission parts are not short of oil.
| Conveying Unit | MHC-1060AR |
| 01. Non-stop high-speed paper feeding section | 〇 |
| 02. Fish-scale powerful paper suction feeder head with 4 suction and 4 delivery. The suction head can be adjust to various suction angles according to the deformation of the paper | 〇 |
| 03. Adjustable suction blower, suction head and air separation valve processed with ultra-hard alloy | 〇 |
| 04. Triple feeder head anti-collision device | 〇 |
| 05. Horizontal paper separation blower | 〇 |
| 06. The main and auxiliary stacking tables alternate without stopping, and the feeder operates without stopping | 〇 |
| 07. Electrical left/right fine-tuning device for the main feed pile | 〇 |
| 08. The pre-stacking device is equipped with rails so that the operator can accurately and conveniently send the stack of paper into the feeder | 〇 |
| 09. The paper alignment adjustment device can manually adjust the distance before the paper reaches the gauge without stopping the machine | 〇 |
| 10. Large inclined paper table, suitable for high-speed conveying of thin paper and curved paper | 〇 |
| 11. Push-pull dual-purpose side gauges, one set for the operation side and one set for the transmission side. Side gauges can be adjusted between push-pull gauges to meet different paper requirements | 〇 |
| 12. Photoelectric detection of side gauge and front gauge | 〇 |
| 13. Slowdown mechanism for sheet feeding at the front gauge | 〇 |
| 14. Electromechanical double sheet detector | 〇 |
| 15. Imported paper feeding belt and stainless steel transfer plate | 〇 |
| 16. Pneumatic lifting device for paper feeding frame | 〇 |
| 17. Single-point clutch: The conveying part and the main machine part can be separated and synchronously combined at any time, which simplifies and facilitates the operation sequence. Regardless of proofing, pressure testing, etc., the conveying part can be separated and closed as desired | 〇 |
| 18. PLC and electronic cam control the timing of the whole machine | 〇 |
| 19. Blow-suction dual-purpose vacuum pump of German Becker brand | 〇 |
| Die-cutting Unit | |
| 01. The entire machine casting is made of QT-700-2 nodular cast iron | 〇 |
| 02. Imported worm gear, worm gear and 40cr crankshaft | 〇 |
| 03. A complete set of imported anodized aluminum alloy gripper bars and positioning structure. The gripper bars adopt an adjustable gripper bar structure | 〇 |
| 04. Imported main drive chain | 〇 |
| 05. Imported intermittent splitter | 〇 |
| 06. Imported synchronous belt and pulley drive | 〇 |
| 07. Imported pneumatic clutch brake device | 〇 |
| 08. Pressure regulating device, which can realize accurate control of pressure through PLC touch screen buttons | 〇 |
| 09. Die-cutting pressure is measured directly and accurately by deformation measuring device and displayed on the human-machine interface. | 〇 |
| 10. Die-cutting base plate and die mould rotary device | 〇 |
| 11. The connection between the die cutting plate and the chase adopts the form of grasping snail and screws, adopt central positioning system, which is fast and accurate | 〇 |
| 12. The die-cutting chase and the lower mat are locked by the Japan SMC gas regulator, which can prevent improper locking of the upper frame caused by human error during installation | 〇 |
| 13. Japan SMC air pressure detection device, low air pressure alarm | 〇 |
| 14. Equipped with an air storage tank to ensure the stability of the air pressure of the whole machine | 〇 |
| 15. The 20-temperature zones independent control system can effectively control the heating temperature of the heating plate, ensuring that the temperature control of the entire heating system is more balanced and stable | 〇 |
| 16. The whole machine adopts a centralized automatic oil supply system to ensure that the transmission parts are not short of oil | 〇 |
| 17. Automatic oil pumping circulation cooling device ensures the lubrication of the main machine during long-term high-speed operation and maintains the normal temperature of the lubricating oil of the main machine. | 〇 |
| Delivery Unit | |
| 01. Roll-up curtain type auxiliary paper delivery device, can realize non-stop paper delivery | 〇 |
| 02. Adjustable mechanical paper delivery brush press mechanism to help gripper bar discharge and stack paper | 〇 |
| 03. Paper delivery alignment device | 〇 |
| 04. Photoelectric detection of upper and lower limit switches can effectively prevent the paper stacking table from excessive paper pile stacking and paper curling up | 〇 |
| 05. The two-way auxiliary air blowing for paper delivery and the manual sampling mechanism make the operation convenient | 〇 |
| 06. Spring chain adjustment device: Adjusting the tension of spring chain can reduce the inertia impact during the steerings of the gripper bar, and maintain the balanced tension of the chain | 〇 |
| Electric Unit | |
| 01. Self-developed PLC control system(Invention Patent) | 〇 |
| 02. The die-cutting unit adopts 10.4-inch touch display screens | 〇 |
| 03. The machine adopts Germany Moeller brand relays, AC contactors, air switches and buttons, to ensure the stability and reliability of electrical parts | 〇 |
| 04. The machine adopts Japanese Omron brand photoelectric switch, optical fiber, encoder and sensor, to ensure the accuracy and stability of electrical detection of each part of the action | 〇 |
Note: This allocation sheet is for reference only, the formal allocation sheet is subject to the contract. Standard configuration: 〇; Optional: △
| Model | MHC-1060AR |
| Max. Sheet Size | 1080×780mm |
| Min. Sheet Size | 400×350mm |
| Max. Cutting Size | 1060×760mm |
| Max. Embossing Size | 1060×760mm |
| Min. Gripper Margin | 9-17mm |
| Cutting Rule Height | 23.8mm |
| Inner Chase Size | 1120×786mm |
| Stock Range | Cardboard: 80-2000g/m2, 0.1-2mm Corrugated board: ≤4mm |
| Die Cutting Accuracy | ≤±0.1mm |
| Embossing Accuracy | ≤±0.1mm |
| Max. Die Cutting Force | 600T |
| Max. Working Speed | 7500s/h |
| Max. Feeder Pile Height | 1600mm (With pallet) |
| Max. Delivery Pile Height | 1400mm (With pallet) |
| Electric-heated System | 20 temperature ranges, 40-180℃ is adjustable |
| Main Motor Wattage | 15KW |
| Full Load Wattage | 35KW |
| Air Requirement | Pressure: 0.6-0.7Mpa, Flow: ≥0.37m3/min |
| Net Weight of Machine | 19T |
| Machine Dimensions | 6300×4306×2350mm(L×W×H) (L: paper prepared track included, W: platform included) |

The MHC-1060ACER/1080ACER Automatic Die Cutting Machine with Heating System is key equipment for printing finishing such as die cut, crease and embossing etc. Unique drive gears are adopted such as high-precision indexing mechanism, pneumatic closed up, pneumatic clutch, overload protection, automatic compression relief etc, to ensure stable and high speed running of the machine. This machine is equipped with practical and reliable mechanism such as pre-stack device, secondary delivery mechanisms, manual sampling, etc, which ensure the excellent performance of the machine. Electrical components and driving elements of internationally known brands to ensure die cutting precision and reliability of running. Also man-machine interface is able to monitor machine running status, troubleshooting and indicating relevant help information which fully actualized man-machine communication.


High-speed feeder head with adaptive paper adjustment capability.

Equipped with gas spring support and slowdown mechanism for sheet feeding at the front gauge, it integrates with the paper feeding frame for unified adjustment of the feeding rollers, enabling rapid and convenient tuning.

High-precision imported intermittent splitter, capable of maintaining high positioning accuracy even after long-term use.

20-Zone Independent Temperature Control System ensures precise heating of the hot stamping plate, delivering balanced and stable temperature distribution across the entire heating system. Maximum stamping pressure reaches 600 tons.

Automatic oil pumping circulation cooling device ensures the lubrication of the main machine during long-term high-speed operation and maintains the normal temperature of the lubricating oil of the main machine.

The stripping plate is installed using a centerline quick-positioning method, enabling operators to mount it rapidly and improve changeover efficiency.

Main collecting device and Auto non-stop roll-up type auxiliary collecting device switch automatically without any operation, significantly enhancing productivity.

The whole machine adopts a centralized automatic oil supply system to ensure that the transmission parts are not short of oil.
| Conveying Unit | MHC-1060ACER |
| 01. Non-stop high-speed paper feeding section | 〇 |
| 02. Fish-scale powerful paper suction feeder head with 4 suction and 4 delivery. The suction head can be adjust to various suction angles according to the deformation of the paper | 〇 |
| 03. Adjustable suction blower, suction head and air separation valve processed with ultra-hard alloy | 〇 |
| 04. Triple feeder head anti-collision device | 〇 |
| 05. Horizontal paper separation blower | 〇 |
| 06. The main and auxiliary stacking tables alternate without stopping, and the feeder operates without stopping | 〇 |
| 07. Electrical left/right fine-tuning device for the main feed pile | 〇 |
| 08. The pre-stacking device is equipped with rails so that the operator can accurately and conveniently send the stack of paper into the feeder | 〇 |
| 09. The paper alignment adjustment device can manually adjust the distance before the paper reaches the gauge without stopping the machine | 〇 |
| 10. Large inclined paper table, suitable for high-speed conveying of thin paper and curved paper | 〇 |
| 11. Push-pull dual-purpose side gauges, one set for the operation side and one set for the transmission side. Side gauges can be adjusted between push-pull gauges to meet different paper requirements | 〇 |
| 12. Photoelectric detection of side gauge and front gauge | 〇 |
| 13. Slowdown mechanism for sheet feeding at the front gauge | 〇 |
| 14. Electromechanical double sheet detector | 〇 |
| 15. Imported paper feeding belt and stainless steel transfer plate | 〇 |
| 16. Pneumatic lifting device for paper feeding frame | 〇 |
| 17. Single-point clutch: The conveying part and the main machine part can be separated and synchronously combined at any time, which simplifies and facilitates the operation sequence. Regardless of proofing, pressure testing, etc., the conveying part can be separated and closed as desired | 〇 |
| 18. PLC and electronic cam control the timing of the whole machine | 〇 |
| 19. Blow-suction dual-purpose vacuum pump of German Becker brand | 〇 |
| Die-cutting Unit | |
| 01. The entire machine casting is made of QT-700-2 nodular cast iron | 〇 |
| 02. Imported worm gear, worm gear and 40cr crankshaft | 〇 |
| 03. A complete set of imported anodized aluminum alloy gripper bars and positioning structure. The gripper bars adopt an adjustable gripper bar structure | 〇 |
| 04. Imported main drive chain | 〇 |
| 05. Imported intermittent splitter | 〇 |
| 06. Imported synchronous belt and pulley drive | 〇 |
| 07. Imported pneumatic clutch brake device | 〇 |
| 08. Pressure regulating device, which can realize accurate control of pressure through PLC touch screen buttons | 〇 |
| 09. Die-cutting pressure is measured directly and accurately by deformation measuring device and displayed on the human-machine interface. | 〇 |
| 10. Die-cutting base plate and die mould rotary device | 〇 |
| 11. The connection between the die cutting plate and the chase adopts the form of grasping snail and screws, adopt central positioning system, which is fast and accurate | 〇 |
| 12. The die-cutting chase and the lower mat are locked by the Japan SMC gas regulator, which can prevent improper locking of the upper frame caused by human error during installation | 〇 |
| 13. Japan SMC air pressure detection device, low air pressure alarm | 〇 |
| 14. Equipped with an air storage tank to ensure the stability of the air pressure of the whole machine | 〇 |
| 15. The 20-temperature zones independent control system can effectively control the heating temperature of the heating plate, ensuring that the temperature control of the entire heating system is more balanced and stable | 〇 |
| 16. The whole machine adopts a centralized automatic oil supply system to ensure that the transmission parts are not short of oil | 〇 |
| 17. Automatic oil pumping circulation cooling device ensures the lubrication of the main machine during long-term high-speed operation and maintains the normal temperature of the lubricating oil of the main machine. | 〇 |
| Stripping Unit (Three frames) | |
| 01. Upper waste transmission mechanism | 〇 |
| 02. Users can choose whether to use the stripping function by lifting upper stripping frame | 〇 |
| 03. Intermediate negative stripping transmission mechanism | 〇 |
| 04. Lower stripping transmission mechanism | 〇 |
| 05. The installation of the middle stripping board adopts the center line quick positioning installation method, enabling the operators to install the stripping board quickly and improving the plate changing efficiency | 〇 |
| Delivery Unit | |
| 01. Roll-up curtain type auxiliary paper delivery device, can realize non-stop paper delivery | 〇 |
| 02. Adjustable mechanical paper delivery brush press mechanism to help gripper bar discharge and stack paper | 〇 |
| 03. Paper delivery alignment device | 〇 |
| 04. Photoelectric detection of upper and lower limit switches can effectively prevent the paper stacking table from excessive paper pile stacking and paper curling up | 〇 |
| 05. The two-way auxiliary air blowing for paper delivery and the manual sampling mechanism make the operation convenient | 〇 |
| 06. Spring chain adjustment device: Adjusting the tension of spring chain can reduce the inertia impact during the steerings of the gripper bar, and maintain the balanced tension of the chain | 〇 |
| Electric Unit | |
| 01. Self-developed PLC control system(Invention Patent) | 〇 |
| 02. The die-cutting unit adopts 10.4-inch touch display screens | 〇 |
| 03. The machine adopts Germany Moeller brand relays, AC contactors, air switches and buttons, to ensure the stability and reliability of electrical parts | 〇 |
| 04. The machine adopts Japanese Omron brand photoelectric switch, optical fiber, encoder and sensor, to ensure the accuracy and stability of electrical detection of each part of the action | 〇 |
Note: This allocation sheet is for reference only, the formal allocation sheet is subject to the contract. Standard configuration: 〇; Optional: △
| Model | MHC-1060ACER |
| Max. Sheet Size | 1080×780mm |
| Min. Sheet Size | 400×350mm |
| Max. Cutting Size | 1060×760mm |
| Max. Embossing Size | 1060×760mm |
| Min. Gripper Margin | 9-17mm |
| Min. Width of Cuts | 10-18mm |
| Cutting Rule Height | 23.8mm |
| Inner Chase Size | 1120×786mm |
| Stock Range | Cardboard: 80-2000g/m2,0.1-2mm Corrugated board: ≤4mm |
| Die Cutting Accuracy | ≤±0.1mm |
| Embossing Accuracy | ≤±0.1mm |
| Max. Die Cutting Force | 600T |
| Max. Working Speed | 7500s/h |
| Max. Feeder Pile Height | 1600mm (With pallet) |
| Max. Delivery Pile Height | 1400mm (With pallet) |
| Electric-heated System | 20 temperature ranges, 40-180℃ is adjustable |
| Main Motor Wattage | 15KW |
| Full Load Wattage | 35KW |
| Air Requirement | Pressure: 0.6-0.7Mpa, Flow: ≥0.37m3/min |
| Net Weight of Machine | 20T |
| Machine Dimensions | 7300×4306×2350mm(L×W×H) (L: paper prepared track included, W: platform included) |

The second generation of MHC series Semi-automatic Die Cutting The Machine’ s development is combined with advantages of similar products in domestic and over seas, is special equipment for packing products such as cartons and paper boxes. Gripper bars with high intensity are applicable to all kinds of cardboard, paperboard and corrugated paper. Frontal, back and side registration mechanism ensures great precision of die-cutting. Other parts are adopted such as intermittent mechanism with high precision, air clutch, pneumatic locking mechanism, programmable controller and man-machine interface. The interface can display various digital information of machine such as working speed, amount of paper processed, total running time, etc. It is easy to eliminate troubles according to the display of trouble shooting.
Transducer is adopted to control the main motor in achieving step-less speed variation.


High-precision imported intermittent splitter, capable of maintaining high positioning accuracy even after long-term use.

High stack lifting delivery mechanism: The paper collection structure allows entire stacks to be pulled out of the machine.

Adopts electrical components of world famous brands(MOELLER\OMRON) for better performance and in time and local after-sale-service and maintenance.

The whole machine adopts a centralized automatic oil supply system to ensure that the transmission parts are not short of oil.
| Conveying Unit | MHC-1100B/1300B/1500B/1650B/1900B |
| 01. Commonly used for cardboard, corrugated paper and grey board paper | 〇 |
| 02. Equipped with a monitor to visually observe the operation of the delivery section | 〇 |
| 03. A 10.4-inch color screen displays the working status of the machine at all times | 〇 |
| 04. Equipped with a pre-paper stacking mechanism for high work efficiency | 〇 |
| Die-cutting Unit | |
| 01. The entire machine casting is made of QT-700-2 nodular cast iron | 〇 |
| 02. Imported worm gear, worm gear and 40cr crankshaft | 〇 |
| 03. A complete set of imported anodized aluminum alloy gripper bars and positioning structure. The gripper bars adopt an adjustable gripper bar structure | 〇 |
| 04. Imported main drive chain | 〇 |
| 05. Imported intermittent splitter | 〇 |
| 06. Imported synchronous belt and pulley drive | 〇 |
| 07. Imported pneumatic clutch brake device | 〇 |
| 08. Pressure regulating device, which can realize accurate control of pressure through PLC touch screen buttons | 〇 |
| 09. Die-cutting pressure is measured directly and accurately by deformation measuring device and displayed on the human-machine interface | 〇 |
| 10. Die-cutting base plate and die mould rotary device | 〇 |
| 11. The connection between the die cutting plate and the chase adopts the form of grasping snail and screws, adopt central positioning system, which is fast and accurate | 〇 |
| 12. The die-cutting chase and the lower mat are locked by the Japan SMC gas regulator, which can prevent improper locking of the upper frame caused by human error during installation | 〇 |
| 13. Japan SMC air pressure detection device, low air pressure alarm | 〇 |
| 14. Equipped with an air storage tank to ensure the stability of the air pressure of the whole machine | 〇 |
| 15. The whole machine adopts a centralized automatic oil supply system to ensure that the transmission parts are not short of oil | 〇 |
| Delivery Unit | |
| 01. High pile stacking table adopts lifting device, paper delivery structure can pull the whole pile of paper out of the machine.(Special for high pile stacking delivery) | 〇 |
| 02. Paper delivery alignment device | 〇 |
| 03. Photoelectric detection of upper and lower limit switches can effectively prevent the paper stacking table from excessive paper pile stacking and paper curling up | 〇 |
| 04. Spring chain adjustment device: Adjusting the tension of spring chain can reduce the inertia impact during the steerings of the gripper bar, and maintain the balanced tension of the chain | 〇 |
| Electrical unit | |
| 01. Self-developed PLC control system(Invention Patent) | 〇 |
| 02. The die-cutting unit adopts 10.4-inch touch display screens | 〇 |
| 03. The machine adopts Germany Moeller brand relays, AC contactors, air switches and buttons, to ensure the stability and reliability of electrical parts | 〇 |
| 04. The machine adopts Japanese Omron brand photoelectric switch, optical fiber, encoder and sensor, to ensure the accuracy and stability of electrical detection of each part of the action | 〇 |
Note: This allocation sheet is for reference only, the formal allocation sheet is subject to the contract. Standard configuration: 〇; Optional: △
| Model | MHC-1100B | MHC-1300B | MHC-1500B | MHC-1650B | MHC-1900B |
| Max. Sheet Size | 1100×790mm | 1290×940mm | 1500×1100mm | 1650×1200mm | 1900×1400mm |
| Min. Sheet Size | 400×350mm | 470×450mm | 470×450mm | 550×500mm | 650×550mm |
| Max. Cutting Size | 1070×770mm | 1280×920mm | 1480×1080mm | 1620×1180mm | 1870×1380mm |
| Min. Gripper Margin | 9-17mm | 9-17mm | 9-17mm | 9-17mm | 9-17mm |
| Cutting Rule Height | 23.8mm | 23.8mm | 23.8mm | 23.8mm | 23.8mm |
| Inner Chase Size | 1120×786mm | 1310×948mm | 1510×1118mm | 1682×1219mm | 1912×1419mm |
| Stock Range | Corrugated board: ≤7mm, E, B, C, A and AB corrugated paper | Corrugated board: ≤8.5mm, E, B, C, A and AB corrugated paper | Corrugated board: ≤8.5mm, E, B, C, A and AB corrugated paper | Corrugated board: ≤8.5mm, E, B, C, A and AB corrugated pape | Corrugated board: ≤8.5mm, E, B, C, A and AB corrugated paper |
| Die Cutting Accuracy | ≤±0.1mm | ≤±0.15mm | ≤±0.15mm | ≤±0.2mm | ≤±0.2mm |
| Max. Die Cutting Force | 300T | 400T | 400T | 400T | 450T |
| Max. Working Speed | 7500s/h | 5500s/h | 5500s/h | 4500s/h | 4000s/h |
| Max. Feeder Pile Height | 1600mm (With pallet) | 1600mm (With pallet) | 1600mm (With pallet) | 1600mm (With pallet) | 1620mm (With pallet) |
| Max. Delivery Pile Height | 1400mm (With pallet) | 1400mm (With pallet) | 1400mm (With pallet) | 1400mm (With pallet) | 1500mm (With pallet) |
| Main Motor Wattage | 11KW | 11KW | 15KW | 18.5KW | 18.5kw |
| Full Load Wattage | 14KW | 14KW | 18KW | 22KW | 22KW |
| Air Requirement | Pressure: 0.6-0.7Mpa, Flow: ≥0.37m3/min | Pressure: 0.6-0.7Mpa, Flow: ≥0.37m3/min | Pressure: 0.6-0.7Mpa, Flow: ≥0.37m3/min | Pressure: 0.6-0.7Mpa, Flow: ≥0.75m3/min | Pressure: 0.6-0.7Mpa, Flow: ≥0.75m3/min |
| Net Weight of Machine | 13T | 15T | 17T | 20T | 26T |
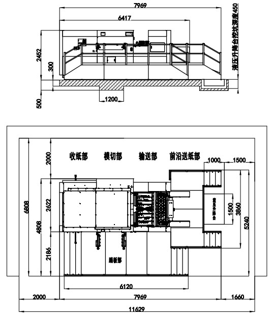
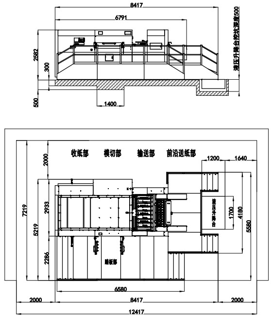
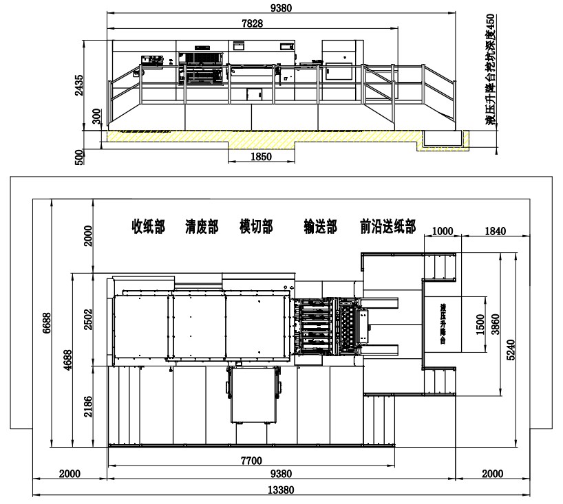
| Machine Dimensions | 6300×4256×2350mm (L: paper prepared track included, W: platform included) | 6023×4506×2467mm (L: paper prepared track included, W: platform included) | 6295×4706×2452mm (L: paper prepared track included, W: platform included) | 6646×5117×2582mm (L: paper prepared track included, W: platform included) | 8100×5872×2525mm (L: paper prepared track included, W: platform included) |





The second generation of MHC series Semi-automatic Die Cutting The Machine’ s development is combined with advantages of similar products in domestic and over seas, is special equipment for packing products such as cartons and paper boxes. Gripper bars with high intensity are applicable to all kinds of cardboard, paperboard and corrugated paper. Frontal, back and side registration mechanism ensures great precision of die-cutting. Other parts are adopted such as intermittent mechanism with high precision, air clutch, pneumatic locking mechanism, programmable controller and man-machine interface. The interface can display various digital information of machine such as working speed, amount of paper processed, total running time, etc. It is easy to eliminate troubles according to the display of trouble shooting.
Transducer is adopted to control the main motor in achieving step-less speed variation.


High-precision imported intermittent splitter, capable of maintaining high positioning accuracy even after long-term use.

● Adopt the stripping mechanism of three frames.
● The stripping plate is installed using a centerline quick-positioning method, enabling operators to mount it rapidly and improve changeover efficiency

High stack lifting delivery mechanism: The paper collection structure allows entire stacks to be pulled out of the machine.

Adopts electrical components of world famous brands(MOELLER\OMRON) for better performance and in time and local after-sale-service and maintenance.

The whole machine adopts a centralized automatic oil supply system to ensure that the transmission parts are not short of oil.
| Conveying Unit | MHC-1100BC/1300BC/1500BC/1650BC |
| 01. Commonly used for cardboard, corrugated paper and grey board paper | 〇 |
| 02. Equipped with a monitor to visually observe the operation of the delivery section | 〇 |
| 03. A 10.4-inch color screen displays the working status of the machine at all times | 〇 |
| 04. Equipped with a pre-paper stacking mechanism for high work efficiency | 〇 |
| Die-cutting Unit | |
| 01. The entire machine casting is made of QT-700-2 nodular cast iron | 〇 |
| 02. Imported worm gear, worm gear and 40cr crankshaft | 〇 |
| 03. A complete set of imported anodized aluminum alloy gripper bars and positioning structure. The gripper bars adopt an adjustable gripper bar structure | 〇 |
| 04. Imported main drive chain | 〇 |
| 05. Imported intermittent splitter | 〇 |
| 06. Imported synchronous belt and pulley drive | 〇 |
| 07. Imported pneumatic clutch brake device | 〇 |
| 08. Pressure regulating device, which can realize accurate control of pressure through PLC touch screen buttons | 〇 |
| 09. Die-cutting pressure is measured directly and accurately by deformation measuring device and displayed on the human-machine interface | 〇 |
| 10. Die-cutting base plate and die mould rotary device | 〇 |
| 11. The connection between the die cutting plate and the chase adopts the form of grasping snail and screws, adopt central positioning system, which is fast and accurate | 〇 |
| 12. The die-cutting chase and the lower mat are locked by the Japan SMC gas regulator, which can prevent improper locking of the upper frame caused by human error during installation | 〇 |
| 13. Japan SMC air pressure detection device, low air pressure alarm | 〇 |
| 14. Equipped with an air storage tank to ensure the stability of the air pressure of the whole machine | 〇 |
| 15. The whole machine adopts a centralized automatic oil supply system to ensure that the transmission parts are not short of oil | 〇 |
| Stripping Unit | |
| 01. Upper waste transmission mechanism | 〇 |
| 02. Users can choose whether to use the stripping function by lifting upper stripping frame | 〇 |
| 03. Intermediate negative stripping transmission mechanism | 〇 |
| 04. Lower stripping transmission mechanism | 〇 |
| 05. The installation of the middle stripping board adopts the center line quick positioning installation method, enabling the operators to install the stripping board quickly and improving the plate changing efficiency | 〇 |
| Delivery Unit | |
| 01. High pile stacking table adopts lifting device, paper delivery structure can pull the whole pile of paper out of the machine.(Special for high pile stacking delivery) | 〇 |
| 02. Paper delivery alignment device | 〇 |
| 03. Photoelectric detection of upper and lower limit switches can effectively prevent the paper stacking table from excessive paper pile stacking and paper curling up | 〇 |
| 04. Spring chain adjustment device: Adjusting the tension of spring chain can reduce the inertia impact during the steerings of the gripper bar, and maintain the balanced tension of the chain | 〇 |
| Electrical unit | |
| 01. Self-developed PLC control system(Invention Patent) | 〇 |
| 02. The die-cutting unit adopts 10.4-inch touch display screens | 〇 |
| 03. The machine adopts Germany Moeller brand relays, AC contactors, air switches and buttons, to ensure the stability and reliability of electrical parts | 〇 |
| 04. The machine adopts Japanese Omron brand photoelectric switch, optical fiber, encoder and sensor, to ensure the accuracy and stability of electrical detection of each part of the action | 〇 |
Note: This allocation sheet is for reference only, the formal allocation sheet is subject to the contract. Standard configuration: 〇; Optional: △
| Model | MHC-1100BC | MHC-1300BC | MHC-1500BC | MHC-1650BC |
| Max. Paper Size | 1100×790mm | 1290×940mm | 1500×1100mm | 1650×1200mm |
| Min. Paper Size | 400×350mm | 470×450mm | 470×450mm | 550×500mm |
| Max. Cutting Size | 1070×770mm | 1280×920mm | 1480×1080mm | 1620×1180mm |
| Min. Gripper Margin | 9-17mm | 9-17mm | 9-17mm | 9-17mm |
| Min. Width of Cuts | 10-18mm | 10-18mm | 10-18mm | 10-18mm |
| Cutting Rule Height | 23.8mm | 23.8mm | 23.8mm | 23.8mm |
| Inner Chase Size | 1120×786mm | 1310×948mm | 1510×1118mm | 1682×1219mm |
| Stock Range | Corrugated board: ≤7mm, E, B, C, A and AB corrugated paper | Corrugated board: ≤8.5mm, E, B, C, A and AB corrugated paper | Corrugated board: ≤8.5mm, E, B, C, A and AB corrugated paper | Corrugated board: ≤8.5mm, E, B, C, A and AB corrugated paper |
| Die Cutting Accuracy | ≤±0.1mm | ≤±0.15mm | ≤±0.15mm | ≤±0.2mm |
| Max. Die Cutting Force | 300T | 400T | 400T | 400T |
| Max. Working Speed | 7500s/h | 5500s/h | 5500s/h | 4500s/h |
| Max. Feeder Pile Height | 1600mm (With pallet) | 1600mm (With pallet) | 1600mm (With pallet) | 1600mm (With pallet) |
| Max. Delivery Pile Height | 1400mm (With pallet) | 1400mm (With pallet) | 1400mm (With pallet) | 1400mm (With pallet) |
| Main Motor Power | 11KW | 11KW | 15KW | 18.5KW |
| Full Load Wattage | 15KW | 15KW | 20KW | 24KW |
| Air Requirement | Pressure: 0.6-0.7Mpa, Flow: ≥0.37m3/min | Pressure: 0.6-0.7Mpa, Flow: ≥0.37m3/min | Pressure: 0.6-0.7Mpa, Flow: ≥0.37m3/min | Pressure: 0.6-0.7Mpa, Flow: ≥0.75m3/min |
| Net Weight of Machine | 14T | 16T | 18T | 21T |
| Machine Dimensions | 7683×4256×2350mm (L: paper prepared track included, W: platform included) | 7880×4506×2467mm (L: paper prepared track included, W: platform included) | 8095×4706×2452mm (L: paper prepared track included, W: platform included) | 8646×5117×2582mm (L: paper prepared track included, W: platform included) |

MHC Series Automatic Die Cutting Machine is equipped with servo motor control system, thus makes sure thick and thin paper feeding function effectively, paper feeding system can be divided into three types: 1. single piece of paper feeding function (for 4 – 8mm corrugated paper), 2. two pieces of overlapping paper feeding function (for 2 – 4mm corrugated paper), 3. multiple pieces of overlapping paper feeding function (for to 250g – 2mm paper). This machine including both manual paper feeding and automatic feeder paper feeding function. On condition of flat corrugated paper, automatic feeder paper feeding is accepted with raising efficiency and reducing workforce. Manual paper feeding comes in handy on condition of uneven corrugated paper. This machine maintains multi-operational function, and its development is combined with advantages of similar products in domestic and overseas, is special equipment for packing products such as cartons and paper boxes. Gripper bars with high intensity are applicable to all kinds of cardboard, paperboard and corrugated paper. Frontal, back and side registration mechanism ensures great precision of die cutting. Other parts are adopted such as intermittent mechanism with high precision, pneumatic clutch and pneumatic closed up mechanism, programmable controller and man-machine interface. The interface can display various digital information of machine such as working speed, amount of paper processed, total running time, etc. It is easy to eliminate troubles according to the display of trouble shooting. Transducer is adopted to control the main motor in achieving step-less speed variation.
This machine is equipped with sensors and safety device to ensure normal operation of machine and safety of workers.

Feeder lifting device(Tiptronic function)

Three paper feeding modes:
● Single-sheet paper feeding (suitable for 4-8.5MM corrugated cardboard)
● Double-sheet overlapping paper feeding (suitable for 2-4MM corrugated cardboard)
● Multiple-sheet overlapping paper feeding (suitable for paper with a thickness of ≤2MM)

High-precision imported intermittent splitter, capable of maintaining high positioning accuracy even after long-term use.

Main collecting device and Auto non-stop roll-up type auxiliary collecting device switch automatically without any operation, significantly enhancing productivity.

Adopts electrical components of world famous brands(MOELLER\OMRON) for better performance and in time and local after-sale-service and maintenance.

The whole machine adopts a centralized automatic oil supply system to ensure that the transmission parts are not short of oil.
| Conveying Unit | MHC-1100E/1300E/1350E/1500E/1650E |
| 01. Non-stop high-speed paper feeding section | 〇 |
| 02. Feeder lifting device(Tiptronic function) | 〇 |
| 03. Fish-scale powerful paper suction feeder head with 4 suction and 6 delivery. The suction head can be adjust to various suction angles according to the deformation of the paper | 〇 |
| 04. Adjustable suction blower, suction head and air separation valve processed with ultra-hard alloy | 〇 |
| 05. Triple feeder head anti-collision device | 〇 |
| 06. Horizontal paper separation blower | 〇 |
| 07. Electrical left/right fine-tuning device for the main feed pile | 〇 |
| 08. The pre-stacking device is equipped with rails so that the operator can accurately and conveniently send the stack of paper into the feeder | 〇 |
| 09. The paper alignment adjustment device can manually adjust the distance before the paper reaches the gauge without stopping the machine | 〇 |
| 10. Push-pull dual-purpose side gauges, one set for the operation side and one set for the transmission side. Side gauges can be adjusted between push-pull gauges to meet different paper requirements | 〇 |
| 11. Photoelectric detection of side gauge and front gauge | 〇 |
| 12. Servo motor conveying and positioning device | 〇 |
| 13. Three paper feeding modes: 1)Single-sheet paper feeding (suitable for 4-8.5MM corrugated cardboard) 2)Double-sheet overlapping paper feeding (suitable for 2-4MM corrugated cardboard) 3)Multiple-sheet overlapping paper feeding (suitable for paper with a thickness of ≤2MM) | 〇 |
| 14. Electromechanical double sheet detector | 〇 |
| 15. Imported paper feeding belt and stainless steel transfer plate | 〇 |
| 16. Pneumatic lifting device for paper feeding frame | 〇 |
| 17. PLC and electronic cam control the timing of the whole machine | 〇 |
| 18. Blow-suction dual-purpose vacuum pump of German Becker brand | 〇 |
| Die-cutting Unit | |
| 01. The entire machine casting is made of QT-700-2 nodular cast iron | 〇 |
| 02. Imported worm gear, worm gear and 40cr crankshaft | 〇 |
| 03. A complete set of imported anodized aluminum alloy gripper bars and positioning structure, fine steel gripper teeth and supporting gripper plates. The gripper bars adopt an adjustable gripper bar structure | 〇 |
| 04. Imported main drive chain | 〇 |
| 05. Imported intermittent splitter | 〇 |
| 06. Imported synchronous belt and pulley drive | 〇 |
| 07. Imported pneumatic clutch brake device | 〇 |
| 08. Pressure regulating device, which can realize accurate control of pressure through PLC touch screen buttons | 〇 |
| 09. Die-cutting pressure is measured directly and accurately by deformation measuring device and displayed on the human-machine interface | 〇 |
| 10. Die-cutting base plate and die mould rotary device | 〇 |
| 11. The connection between the die cutting plate and the chase adopts the form of grasping snail and screws, adopt central positioning system, which is fast and accurate | 〇 |
| 12. The die-cutting chase and the lower mat are locked by the Japan SMC gas regulator, which can prevent improper locking of the upper frame caused by human error during installation | 〇 |
| 13. Japan SMC air pressure detection device, low air pressure alarm | 〇 |
| 14. Equipped with an air storage tank to ensure the stability of the air pressure of the whole machine | 〇 |
| 15. The whole machine adopts a centralized automatic oil supply system to ensure that the transmission parts are not short of oil | 〇 |
| Delivery Unit | |
| 01. Roll-up curtain type auxiliary paper delivery device, can realize non-stop paper delivery | 〇 |
| 02. Adjustable mechanical paper delivery brush press mechanism to help gripper bar discharge and stack paper | 〇 |
| 03. Paper delivery alignment device | 〇 |
| 04. Photoelectric detection of upper and lower limit switches can effectively prevent the paper stacking table from excessive paper pile stacking and paper curling up | 〇 |
| 05. The two-way auxiliary air blowing for paper delivery and the manual sampling mechanism make the operation convenient | 〇 |
| 06. Spring chain adjustment device: Adjusting the tension of spring chain can reduce the inertia impact during the steerings of the gripper bar, and maintain the balanced tension of the chain | 〇 |
| Electrical Parts | |
| 01. Self-developed PLC control system(Invention Patent) | 〇 |
| 02. The die-cutting unit adopts 10.4-inch touch display screens | 〇 |
| 03. The machine adopts Germany Moeller brand relays, AC contactors, air switches and buttons, to ensure the stability and reliability of electrical parts | 〇 |
| 04. The machine adopts Japanese Omron brand photoelectric switch, optical fiber, encoder and sensor, to ensure the accuracy and stability of electrical detection of each part of the action | 〇 |
Note: This allocation sheet is for reference only, the formal allocation sheet is subject to the contract. Standard configuration: 〇; Optional: △
| Model | MHC-1100E | MHC-1300E | MHC-1350E | MHC-1500E | MHC-1650E |
| Max. Sheet Size | 1100×790mm | 1290×940mm | 1350×1100mm | 1500×1100mm | 1650×1200mm |
| Min. Sheet Size | 400×350mm | 470×450mm | 470×450mm | 470×450mm | 550×500mm |
| Max. Cutting Size | 1070×770mm | 1280×920mm | 1330×1080mm | 1480×1080mm | 1620×1180mm |
| Min. Gripper Margin | 9-17mm | 9-17mm | 9-17mm | 9-17mm | 9-17mm |
| Cutting Rule Height | 23.8mm | 23.8mm | 23.8mm | 23.8mm | 23.8mm |
| Inner Chase Size | 1120×786mm | 1310×948mm | 1360×1118mm | 1510×1118mm | 1682×1219mm |
| Stock Range | Cardboard:≥200g/m2;Corrugated board: ≤7mm, E, B, C, A and AB corrugated pape | Cardboard:≥200g/m2;Corrugated board: ≤8.5mm, E, B, C, A and AB corrugated pape | Cardboard:≥200g/m2;Corrugated board: ≤8.5mm, E, B, C, A and AB corrugated paper | Cardboard:≥250g/m2;Corrugated board: ≤8.5mm, E, B, C, A and AB corrugated paper | Cardboard:≥350g/m2;Corrugated board: ≤8.5mm, E, B, C, A and AB corrugated paper |
| Die Cutting Accuracy | ≤±0.1mm | ≤±0.15mm | ≤±0.15mm | ≤±0.15mm | ≤±0.2mm |
| Max. Die Cutting Force | 300T | 400T | 400T | 400T | 400T |
| Max. Working Speed | 7500s/h | 5500s/h | 5500s/h | 5500s/h | 4500s/h |
| Max. Feeder Pile Height | 1600mm (With pallet) | 1600mm (With pallet) | 1600mm (With pallet) | 1600mm (With pallet) | 1600mm (With pallet) |
| Max. Delivery Pile Height | 1400mm (With pallet) | 1400mm (With pallet) | 1400mm (With pallet) | 1400mm (With pallet) | 1400mm (With pallet) |
| Main Motor Power | 11KW | 11KW | 15KW | 15KW | 18.5KW |
| Full Load Wattage | 18KW | 18KW | 22KW | 22KW | 26KW |
| Air Requirement | Pressure: 0.6-0.7Mpa, Flow: ≥0.37m3/min | Pressure: 0.6-0.7Mpa, Flow: ≥0.37m3/min | Pressure: 0.6-0.7Mpa, Flow: ≥0.37m3/min | Pressure: 0.6-0.7Mpa, Flow: ≥0.37m3/min | Pressure: 0.6-0.7Mpa, Flow: ≥0.75m3/min |
| Net Weight of Machine | 16T | 18T | 19T | 20T | 22T |
| Machine Dimensions | 6440×4256×2350mm (L×W×H) (L: paper prepared track included, W: platform included) | 8276×4506×2467mm (L×W×H) (L: paper prepared track included, W: platform included) | 8033×4688×2435mm (L×W×H) ?(L: paper prepared track included, W: platform included) | 8546×4706×2452mm (L×W×H) (L: paper prepared track included, W: platform included) | 9144×5117×2582(L×W×H) (L: paper prepared track included, W: platform included) |





MHC Series Automatic Die Cutting Machine is equipped with servo motor control system, thus makes sure thick and thin paper feeding function effectively, paper feeding system can be divided into three types: 1. single piece of paper feeding function (for 4 – 8mm corrugated paper), 2. two pieces of overlapping paper feeding function (for 2 – 4mm corrugated paper), 3. multiple pieces of overlapping paper feeding function (for to 250g – 2mm paper). This machine including both manual paper feeding and automatic feeder paper feeding function. On condition of flat corrugated paper, automatic feeder paper feeding is accepted with raising efficiency and reducing workforce. Manual paper feeding comes in handy on condition of uneven corrugated paper. This machine maintains multi-operational function, and its development is combined with advantages of similar products in domestic and overseas, is special equipment for packing products such as cartons and paper boxes. Gripper bars with high intensity are applicable to all kinds of cardboard, paperboard and corrugated paper. Frontal, back and side registration mechanism ensures great precision of die cutting. Other parts are adopted such as intermittent mechanism with high precision, pneumatic clutch and pneumatic closed up mechanism, programmable controller and man-machine interface. The interface can display various digital information of machine such as working speed, amount of paper processed, total running time, etc. It is easy to eliminate troubles according to the display of trouble shooting. Transducer is adopted to control the main motor in achieving step-less speed variation.
This machine is equipped with sensors and safety device to ensure normal operation of machine and safety of workers.

Feeder lifting device(Tiptronic function)

Three paper feeding modes:
● Single-sheet paper feeding (suitable for 4-8.5MM corrugated cardboard)
● Double-sheet overlapping paper feeding (suitable for 2-4MM corrugated cardboard)
● Multiple-sheet overlapping paper feeding (suitable for paper with a thickness of ≤2MM)

High-precision imported intermittent splitter, capable of maintaining high positioning accuracy even after long-term use.

Adopt center line system,Upper and lower stripping tool mounting frame can be pulled out for job set up and make ready.

Main collecting device and Auto non-stop roll-up type auxiliary collecting device switch automatically without any operation, significantly enhancing productivity.

Adopts electrical components of world famous brands(MOELLER\OMRON) for better performance and in time and local after-sale-service and maintenance.

The whole machine adopts a centralized automatic oil supply system to ensure that the transmission parts are not short of oil.
| Conveying Unit | MHC-1100EC/1300EC/1350EC/1500EC/1650EC |
| 01. Non-stop high-speed paper feeding section | 〇 |
| 02. Feeder lifting device(Tiptronic function) | 〇 |
| 03. Fish-scale powerful paper suction feeder head with 4 suction and 6 delivery. The suction head can be adjust to various suction angles according to the deformation of the paper | 〇 |
| 04. Adjustable suction blower, suction head and air separation valve processed with ultra-hard alloy | 〇 |
| 05. Triple feeder head anti-collision device | 〇 |
| 06. Horizontal paper separation blower | 〇 |
| 07. Electrical left/right fine-tuning device for the main feed pile | 〇 |
| 08. The pre-stacking device is equipped with rails so that the operator can accurately and conveniently send the stack of paper into the feeder | 〇 |
| 09. The paper alignment adjustment device can manually adjust the distance before the paper reaches the gauge without stopping the machine | 〇 |
| 10. Push-pull dual-purpose side gauges, one set for the operation side and one set for the transmission side. Side gauges can be adjusted between push-pull gauges to meet different paper requirements | 〇 |
| 11. Photoelectric detection of side gauge and front gauge | 〇 |
| 12. Servo motor conveying and positioning device | 〇 |
| 13. Three paper feeding modes: 1)Single-sheet paper feeding (suitable for 4-8.5MM corrugated cardboard) 2)Double-sheet overlapping paper feeding (suitable for 2-4MM corrugated cardboard) 3)Multiple-sheet overlapping paper feeding (suitable for paper with a thickness of ≤2MM) | 〇 |
| 14. Electromechanical double sheet detector | 〇 |
| 15. Imported paper feeding belt and stainless steel transfer plate | 〇 |
| 16. Pneumatic lifting device for paper feeding frame | 〇 |
| 17. PLC and electronic cam control the timing of the whole machine | 〇 |
| 18. Blow-suction dual-purpose vacuum pump of German Becker brand | 〇 |
| Die-cutting Unit | |
| 01. The entire machine casting is made of QT-700-2 nodular cast iron | 〇 |
| 02. Imported worm gear, worm gear and 40cr crankshaft | 〇 |
| 03. A complete set of imported anodized aluminum alloy gripper bars and positioning structure, fine steel gripper teeth and supporting gripper plates. The gripper bars adopt an adjustable gripper bar structure | 〇 |
| 04. Imported main drive chain | 〇 |
| 05. Imported intermittent splitter | 〇 |
| 06. Imported synchronous belt and pulley drive | 〇 |
| 07. Imported pneumatic clutch brake device | 〇 |
| 08. Pressure regulating device, which can realize accurate control of pressure through PLC touch screen buttons | 〇 |
| 09. Die-cutting pressure is measured directly and accurately by deformation measuring device and displayed on the human-machine interface | 〇 |
| 10. Die-cutting base plate and die mould rotary device | 〇 |
| 11. The connection between the die cutting plate and the chase adopts the form of grasping snail and screws, adopt central positioning system, which is fast and accurate | 〇 |
| 12. The die-cutting chase and the lower mat are locked by the Japan SMC gas regulator, which can prevent improper locking of the upper frame caused by human error during installation | 〇 |
| 13. Japan SMC air pressure detection device, low air pressure alarm | 〇 |
| 14. Equipped with an air storage tank to ensure the stability of the air pressure of the whole machine | 〇 |
| 15. The whole machine adopts a centralized automatic oil supply system to ensure that the transmission parts are not short of oil | 〇 |
| Stripping Unit | |
| 01. Upper waste transmission mechanism | 〇 |
| 02. Users can choose whether to use the stripping function by lifting upper stripping frame | 〇 |
| 03. Intermediate negative stripping transmission mechanism | 〇 |
| 04. Lower stripping transmission mechanism | 〇 |
| 05. The installation of the middle stripping board adopts the center line quick positioning installation method, enabling the operators to install the stripping board quickly and improving the plate changing efficiency | 〇 |
| Delivery Unit | |
| 01. Roll-up curtain type auxiliary paper delivery device, can realize non-stop paper delivery | 〇 |
| 02. Adjustable mechanical paper delivery brush press mechanism to help gripper bar discharge and stack paper | 〇 |
| 03. Paper delivery alignment device | 〇 |
| 04. Photoelectric detection of upper and lower limit switches can effectively prevent the paper stacking table from excessive paper pile stacking and paper curling up | 〇 |
| 05. The two-way auxiliary air blowing for paper delivery and the manual sampling mechanism make the operation convenient | 〇 |
| 06. Spring chain adjustment device: Adjusting the tension of spring chain can reduce the inertia impact during the steerings of the gripper bar, and maintain the balanced tension of the chain | 〇 |
| Electrical Parts | |
| 01. Self-developed PLC control system(Invention Patent) | 〇 |
| 02. The die-cutting unit adopts 10.4-inch touch display screens | 〇 |
| 03. The machine adopts Germany Moeller brand relays, AC contactors, air switches and buttons, to ensure the stability and reliability of electrical parts | 〇 |
| 04. The machine adopts Japanese Omron brand photoelectric switch, optical fiber, encoder and sensor, to ensure the accuracy and stability of electrical detection of each part of the action | 〇 |
Note: This allocation sheet is for reference only, the formal allocation sheet is subject to the contract. Standard configuration: 〇; Optional: △
| Model | MHC-1100EC | MHC-1300EC | MHC-1350EC | MHC-1500EC | MHC-1650EC |
| Max. Sheet Size | 1100×790mm | 1290×940mm | 1350×1100mm | 1500×1100mm | 1650×1200mm |
| Min. Sheet Size | 400×350mm | 470×450mm | 470×450mm | 470×450mm | 550×500mm |
| Max. Cutting Size | 1070×770mm | 1280×920mm | 1330×1080mm | 1480×1080mm | 1620×1180mm |
| Min. Gripper Margin | 9-17mm | 9-17mm | 9-17mm | 9-17mm | 9-17mm |
| Min. Width of Cuts | 10-18mm | 10-18mm | 10-18mm | 10-18mm | 10-18mm |
| Cutting Rule Height | 23.8mm | 23.8mm | 23.8mm | 23.8mm | 23.8mm |
| Inner Chase Size | 1120×786mm | 1310×948mm | 1360×1118mm | 1510×1118mm | 1682×1219mm |
| Stock Range | Cardboard:≥200g/m2;Corrugated board: ≤7mm, E, B, C, A and AB corrugated paper | Cardboard:≥200g/m2;Corrugated board: ≤8.5mm, E, B, C, A and AB corrugated paper | Cardboard:≥200g/m2;Corrugated board: ≤8.5mm, E, B, C, A and AB corrugated paper | Cardboard:≥250g/m2;Corrugated board: ≤8.5mm, E, B, C, A and AB corrugated paper | Cardboard:≥350g/m2;Corrugated board: ≤8.5mm, E, B, C, A and AB corrugated paper |
| Die Cutting Accuracy | ≤±0.1mm | ≤±0.15mm | ≤±0.15mm | ≤±0.15mm | ≤±0.2mm |
| Max. Die Cutting Force | 300T | 400T | 400 | 400T | 400T |
| Max. Working Speed | 7500s/h | 5500s/h | 5500s/h | 5500s/h | 4500s/h |
| Max. Feeder Pile Height | 1600mm (With pallet) | 1600mm (With pallet) | 1600mm (With pallet) | 1600mm (With pallet) | 1600mm (With pallet) |
| Max. Delivery Pile Height | 1400mm (With pallet) | 1400mm (With pallet) | 1400mm (With pallet) | 1400mm (With pallet) | 1400mm (With pallet) |
| Main Motor Power | 11KW | 11KW | 15KW | 15KW | 18.5KW |
| Full Load Wattage | 19KW | 19KW | 24KW | 24KW | 28KW |
| Air Requirement | Pressure: 0.6-0.7Mpa, Flow: ≥0.37m3/min | Pressure: 0.6-0.7Mpa, Flow: ≥0.37m3/min | Pressure: 0.6-0.7Mpa, Flow: ≥0.37m3/min | Pressure: 0.6-0.7Mpa, Flow: ≥0.37m3/min | Pressure: 0.6-0.7Mpa, Flow: ≥0.75m3/min |
| Net Weight of Machine | 17T | 19T | 20T | 21T | 23T |
| Machine Dimensions | 7470×4256×2350mm (L: paper prepared track included, W: platform included) | 9551×4506×2467mm (L: paper prepared track included, W: platform included) | 9464×4688×2435mm (L: paper prepared track included, W: platform included) | 9956×4706×2452mm (L: paper prepared track included, W: platform included) | 10690×5117×2582mm (L: paper prepared track included, W: platform included) |






● Top gear and precise Lead Edge Feeder design, allowed consistent feeding with various quality corrugated board.
● New technology polyurethane wheel surface with grid lifter and air cushion ensure smooth feeding and accurate alignment even warped board.
● Fine vacuum suction adjustment through inverter adapts to wide range stock from f flute to double wall corrugate.

● Selectable left and right side push lays to ensure accurate alignment.
● Advanced non-stop adjustment of feeding timing, reduce down time.
● Front gauge non-stop back and forth adjustable to accommodate variation in gripper margin.

High-precision imported intermittent splitter, capable of maintaining high positioning accuracy even after long-term use.

Roll-up type auxiliary paper collection rack, which can realize non-stop paper collection. Delivery unit is also equipped with two-way auxiliary blower for paper collecting, with manual sampling mechanism which is easy to operate.

Adopts electrical components of world famous brands(MOELLER\OMRON) for better performance and in time and local after-sale-service and maintenance.

The whole machine adopts a centralized automatic oil supply system to ensure that the transmission parts are not short of oil.
| Conveying Unit | MHC-1100F/1300F/1350F/1500F/1650F/1900F |
| 01. High-speed and precise lead edge feeder with high feeding accuracy, strong suction power, anti-slip performance, and stable transportation for various types of corrugated board | 〇 |
| 02. New technology polyester wheels with grid lifter and air cushion ensure smooth feeding and accurate alignment even when dealing with warped board | 〇 |
| 03. Fine vacuum suction adjustment through inverter adapts to wide range stock from F flute to five-layer corrugate paper | 〇 |
| 04. Electric side pushing baffles (both the left and right sides) | 〇 |
| 05. The left and right baffle can be adjusted either independently or synchronously. The slanted front baffle can be fine-adjusted in both forward/backward and upward/downward directions, reducing pressure of the paper under the paper pile for smoother feeding | 〇 |
| 06. Right and left side positioning push gauge to ensure precise side positioning of the cardboard | 〇 |
| 07. The pallet height can be adjusted according to the paper quality and thickness, making the paper feeding smoother and more stable | 〇 |
| 08. The fine-tuning device for the front baffle’s front and rear positions can be finely adjusted according to the gripper margin size | 〇 |
| 09. Non-stop adjusting device for feeding step | 〇 |
| Die-cutting Unit | |
| 01. The entire machine casting is made of QT-700-2 nodular cast iron | 〇 |
| 02. Imported worm gear, worm gear and 40cr crankshaft | 〇 |
| 03. A complete set of imported anodized aluminum alloy gripper bars and positioning structure, fine steel gripper teeth and supporting gripper plates. The gripper bars adopt an adjustable gripper bar structure | 〇 |
| 04. Imported main drive chain | 〇 |
| 05. Imported intermittent splitter | 〇 |
| 06. Imported synchronous belt and pulley drive | 〇 |
| 07. Imported pneumatic clutch brake device | 〇 |
| 08. Pressure regulating device, which can realize accurate control of pressure through PLC touch screen buttons | 〇 |
| 09. Die-cutting pressure is measured directly and accurately by deformation measuring device and displayed on the human-machine interface | 〇 |
| 10. Die-cutting base plate and die mould rotary device | 〇 |
| 11. The connection between the die cutting plate and the chase adopts the form of grasping snail and screws, adopt central positioning system, which is fast and accurate | 〇 |
| 12. The die-cutting chase and the lower mat are locked by the Japan SMC gas regulator, which can prevent improper locking of the upper frame caused by human error during installation | 〇 |
| 13. Japan SMC air pressure detection device, low air pressure alarm | 〇 |
| 14. Equipped with an air storage tank to ensure the stability of the air pressure of the whole machine | 〇 |
| 15. The whole machine adopts a centralized automatic oil supply system to ensure that the transmission parts are not short of oil | 〇 |
| Delivery Unit | |
| 01. Roll-up curtain type auxiliary paper delivery device, can realize non-stop paper delivery | 〇 |
| 02. High pile stacking table adopts lifting device, paper delivery structure can pull the whole pile of paper out of the machine.(Special for high pile stacking delivery) | 〇 |
| 03. Paper delivery alignment device | 〇 |
| 04. Photoelectric detection of upper and lower limit switches can effectively prevent the paper stacking table from excessive paper pile stacking and paper curling up | 〇 |
| 05. Spring chain adjustment device: Adjusting the tension of spring chain can reduce the inertia impact during the steerings of the gripper bar, and maintain the balanced tension of the chain | 〇 |
| Electrical Parts | |
| 01. Self-developed PLC control system(Invention Patent) | 〇 |
| 02. The die-cutting unit adopts 10.4-inch touch display screens | 〇 |
| 03. The machine adopts Germany Moeller brand relays, AC contactors, air switches and buttons, to ensure the stability and reliability of electrical parts | 〇 |
| 04. The machine adopts Japanese Omron brand photoelectric switch, optical fiber, encoder and sensor, to ensure the accuracy and stability of electrical detection of each part of the action | 〇 |
Note: This allocation sheet is for reference only, the formal allocation sheet is subject to the contract. Standard configuration: 〇; Optional: △
| Model | MHC-1100F | MHC-1300F | MHC-1350F | MHC-1500F | MHC-1650F | MHC-1900F |
| Max. Sheet Size | 1100×790mm | 1290×940mm | 1350×1100mm | 1500×1100mm | 1650×1200mm | 1900×1400mm |
| Min. Sheet Size | 470×450mm | 470×450mm | 470×450mm | 470×450mm | 550×500mm | 650×550mm |
| Max. Cutting Size | 1070×770mm | 1280×920mm | 1330×1080mm | 1480×1080mm | 1620×1180mm | 1870×1380mm |
| Min. Gripper Waste | 9-17mm | 9-17mm | 9-17mm | 9-17mm | 9-17mm | 9-17mm |
| Cutting Rule Height | 23.8mm | 23.8mm | 23.8mm | 23.8mm | 23.8mm | 23.8mm |
| Inner Chase Size | 1120×786mm | 1310×948mm | 1360×1118mm | 1510×1118mm | 1682×1219mmZ, 3PH | 1912×1419mm |
| Stock Range | Corrugated board: ≤7mm, E, B, C, A and AB corrugated paper | Corrugated board: ≤8.5mm, E, B, C, A and AB corrugated paper | Corrugated board: ≤8.5mm, E, B, C, A and AB corrugated paper | Corrugated board: ≤8.5mm, E, B, C, A and AB corrugated paper | Corrugated board: ≤8.5mm, E, B, C, A and AB corrugated paper | Corrugated board: ≤8.5mm, E, B, C, A and AB corrugated paper |
| Die Cutting Accuracy | ≤±0.1mm | ≤±0.15mm | ≤±0.15mm | ≤±0.15mm | ≤±0.2mm | ≤±0.2mm |
| Max. Die Cutting Force | 300T | 400T | 400T | 400T | 400T | 450T |
| Max. Working Speed | 7500s/h | 5500s/h | 5500s/h | 5500s/h | 4500s/h | 4000s/h |
| Max. Delivery Pile Height | 1400mm (With pallet) | 1400mm (With pallet) | 1400mm (With pallet) | 1400mm (With pallet) | 1400mm (With pallet) | 1500mm (With pallet) |
| Main Motor Power | 11KW | 11KW | 15KW | 15KW | 18.5KW | 18.5KW |
| Full Load Wattage | 22KW | 22KW | 26KW | 26KW | 30KW | 30KW |
| Air Requirement | Pressure: 0.6-0.7Mpa, Flow: ≥0.37m3/min | Pressure: 0.6-0.7Mpa, Flow: ≥0.37m3/min | Pressure: 0.6-0.7Mpa, Flow: ≥0.37m3/min | Pressure: 0.6-0.7Mpa, Flow: ≥0.37m3/min | Pressure: 0.6-0.7Mpa, Flow: ≥0.75m3/min | Pressure: 0.6-0.7Mpa, Flow: ≥0.75m3/min |
| Machine Weight | 17T | 19T | 20T | 21T | 23T | 30T |
| Machine Dimension | 6780×4500×2350mm (L: paper prepared track included, W: platform included) | 7740×5240×2467mm (L: paper prepared track included, W: platform included) | 7969×5240×2435mm (L: paper prepared track included, W: platform included) | 7969×5240×2452mm (L: paper prepared track included, W: platform included) | 8417×5580×2582mm (L: paper prepared track included, W: platform included) | 8900×6260×2525mm (L: paper prepared track included, W: platform included) |







● Top gear and precise Lead Edge Feeder design, allowed consistent feeding with various quality corrugated board.
● New technology polyurethane wheel surface with grid lifter and air cushion ensure smooth feeding and accurate alignment even warped board.
● Fine vacuum suction adjustment through inverter adapts to wide range stock from f flute to double wall corrugate.

● Selectable left and right side push lays to ensure accurate alignment.
● Advanced non-stop adjustment of feeding timing, reduce down time.
● Front gauge non-stop back and forth adjustable to accommodate variation in gripper margin.

High-precision imported intermittent splitter, capable of maintaining high positioning accuracy even after long-term use.

Adopt center line system,Upper and lower stripping tool mounting frame can be pulled out for job set up and make ready.

Roll-up curtain type auxiliary paper collection rack, which can realize non-stop paper collection. Delivery unit is also equipped with two-way auxiliary blower for paper collecting, with manual sampling mechanism which is easy to operate.

Adopts electrical components of world famous brands(MOELLER\OMRON) for better performance and in time and local after-sale-service and maintenance.

The whole machine adopts a centralized automatic oil supply system to ensure that the transmission parts are not short of oil.
| Conveying Unit | MHC-1100FC/1300FC/1350FC/1500FC/1650FC |
| 01. High-speed and precise lead edge feeder with high feeding accuracy, strong suction power, anti-slip performance, and stable transportation for various types of corrugated board | 〇 |
| 02. New technology polyester wheels with grid lifter and air cushion ensure smooth feeding and accurate alignment even when dealing with warped board | 〇 |
| 03. Fine vacuum suction adjustment through inverter adapts to wide range stock from F flute to five-layer corrugate paper | 〇 |
| 04. Electric side pushing baffles (both the left and right sides) | 〇 |
| 05. The left and right baffle can be adjusted either independently or synchronously. The slanted front baffle can be fine-adjusted in both forward/backward and upward/downward directions, reducing pressure of the paper under the paper pile for smoother feeding | 〇 |
| 06. Right and left side positioning push gauge to ensure precise side positioning of the cardboard | 〇 |
| 07. The pallet height can be adjusted according to the paper quality and thickness, making the paper feeding smoother and more stable | 〇 |
| 08. The fine-tuning device for the front baffle’s front and rear positions can be finely adjusted according to the gripper margin size | 〇 |
| 09. Non-stop adjusting device for feeding step | 〇 |
| Die-cutting Unit | |
| 01. The entire machine casting is made of QT-700-2 nodular cast iron | 〇 |
| 02. Imported worm gear, worm gear and 40cr crankshaft | 〇 |
| 03. A complete set of imported anodized aluminum alloy gripper bars and positioning structure, fine steel gripper teeth and supporting gripper plates. The gripper bars adopt an adjustable gripper bar structure | 〇 |
| 04. Imported main drive chain | 〇 |
| 05. Imported intermittent splitter | 〇 |
| 06. Imported synchronous belt and pulley drive | 〇 |
| 07. Imported pneumatic clutch brake device | 〇 |
| 08. Pressure regulating device, which can realize accurate control of pressure through PLC touch screen buttons | 〇 |
| 09. Die-cutting pressure is measured directly and accurately by deformation measuring device and displayed on the human-machine interface | 〇 |
| 10. Die-cutting base plate and die mould rotary device | 〇 |
| 11. The connection between the die cutting plate and the chase adopts the form of grasping snail and screws, adopt central positioning system, which is fast and accurate | 〇 |
| 12. The die-cutting chase and the lower mat are locked by the Japan SMC gas regulator, which can prevent improper locking of the upper frame caused by human error during installation | 〇 |
| 13. Japan SMC air pressure detection device, low air pressure alarm | 〇 |
| 14. Equipped with an air storage tank to ensure the stability of the air pressure of the whole machine | 〇 |
| 15. The whole machine adopts a centralized automatic oil supply system to ensure that the transmission parts are not short of oil | 〇 |
| Stripping Unit | |
| 01. Upper waste transmission mechanism | 〇 |
| 02. Users can choose whether to use the stripping function by lifting upper stripping frame | 〇 |
| 03. Intermediate negative stripping transmission mechanism | 〇 |
| 04. Lower stripping transmission mechanism | 〇 |
| 05. The installation of the middle stripping board adopts the center line quick positioning installation method, enabling the operators to install the stripping board quickly and improving the plate changing efficiency | 〇 |
| Delivery Unit | |
| 01. Roll-up curtain type auxiliary paper delivery device, can realize non-stop paper delivery | 〇 |
| 02. High pile stacking table adopts lifting device, paper delivery structure can pull the whole pile of paper out of the machine.(Special for high pile stacking delivery) | 〇 |
| 03. Paper delivery alignment device | 〇 |
| 04. Photoelectric detection of upper and lower limit switches can effectively prevent the paper stacking table from excessive paper pile stacking and paper curling up | 〇 |
| 05. Spring chain adjustment device: Adjusting the tension of spring chain can reduce the inertia impact during the steerings of the gripper bar, and maintain the balanced tension of the chain | 〇 |
| Electrical Parts | |
| 01. Self-developed PLC control system(Invention Patent) | 〇 |
| 02. The die-cutting unit adopts 10.4-inch touch display screens | 〇 |
| 03. The machine adopts Germany Moeller brand relays, AC contactors, air switches and buttons, to ensure the stability and reliability of electrical parts | 〇 |
| 04. The machine adopts Japanese Omron brand photoelectric switch, optical fiber, encoder and sensor, to ensure the accuracy and stability of electrical detection of each part of the action | 〇 |
Note: This allocation sheet is for reference only, the formal allocation sheet is subject to the contract. Standard configuration: 〇; Optional: △
| Model | MHC-1100FC | MHC-1300FC | MHC-1350FC | MHC-1500FC | MHC-1650FC |
| Max. Sheet Size | 1100×790mm | 1290×940mm | 1350×1100mm | 1500×1100mm | 1650×1200mm |
| Min. Sheet Size | 470×450mm | 470×450mm | 470×450mm | 470×450mm | 650×500mm |
| Max. Cutting Size | 1070×770mm | 1280×920mm | 1330×1080mm | 1480×1080mm | 1620×1180mm |
| Min. Gripper Waste | 9-17mm | 9-17mm | 9-17mm | 9-17mm | 9-17mm |
| Min. Width of Cuts | 10-18mm | 10-18mm | 10-18mm | 10-18mm | 10-18mm |
| Cutting Rule Height | 23.8mm | 23.8mm | 23.8mm | 23.8mm | 23.8mm |
| Inner Chase Size | 1120×786mm | 1310×948mm | 1360×1118mm | 1510×1118mm | 1682×1219mm |
| Stock Range | Corrugated board: ≤7mm, E, B, C, A and AB corrugated paper | Corrugated board: ≤8.5mm, E, B, C, A and AB corrugated paper | Corrugated board: ≤8.5mm, E, B, C, A and AB corrugated paper | Corrugated board: ≤8.5mm, E, B, C, A and AB corrugated paper | Corrugated board: ≤8.5mm, E, B, C, A and AB corrugated paper |
| Die Cutting Accuracy | ≤±0.1mm | ≤±0.15mm | ≤±0.15mm | ≤±0.15mm | ≤±0.2mm |
| Max. Die Cutting Force | 300T | 400T | 400T | 400T | 400T |
| Max. Working Speed | 7500s/h | 5500s/h | 5500s/h | 5500s/h | 4500s/h |
| Max. Delivery Pile Height | 1400mm (With pallet) | 1400mm (With pallet) | 1400mm (With pallet) | 1400mm (With pallet) | 1400mm (With pallet) |
| Min. Motor Power | 11KW | 11KW | 15KW | 15KW | 18.5KW |
| Full Load Wattage | 23KW | 23KW | 28KW | 28KW | 32KW |
| Air Requirement | Pressure: 0.6-0.7Mpa, Flow: ≥0.37m3/min | Pressure: 0.6-0.7Mpa, Flow: ≥0.37m3/min | Pressure: 0.6-0.7Mpa, Flow: ≥0.37m3/min | Pressure: 0.6-0.7Mpa, Flow: ≥0.37m3/min | Pressure: 0.6-0.7Mpa, Flow: ≥0.75m3/min |
| Net Weight of Machine | 18T | 20T | 21T | 22T | 24T |
| Machine Dimension | 7810×4500×2350mm (L: paper prepared track included, W: platform included) | 8974×5240×2467mm(L: paper prepared track included, W: platform included) | 9380×5240×2435mm(L: paper prepared track included, W: platform included) | 9380×5240×2452mm(L: paper prepared track included, W: platform included) | 9964×5580×2582mm(L: paper prepared track included, W: platform included) |






● Non – stop down suck feeder.
● Pneumatic board for sheet trimming.
● Down suck feeding to protect the printing.

● Selectable left and right side push lays to ensure accurate alignment.
● Advanced non-stop adjustment of feeding timing, reduce down time.
● Front gauge non-stop back and forth adjustable to accommodate variation in gripper margin.

High-precision imported intermittent splitter, capable of maintaining high positioning accuracy even after long-term use.

Roll-up curtain type auxiliary paper collection rack, which can realize non-stop paper collection. Delivery unit is also equipped with two-way auxiliary blower for paper collecting, with manual sampling mechanism which is easy to operate.

Adopts electrical components of world famous brands(MOELLER\OMRON) for better performance and in time and local after-sale-service and maintenance.

Blow-suction dual-purpose vacuum pump of German Becker brand.

The whole machine adopts a centralized automatic oil supply system to ensure that the transmission parts are not short of oil.
| Conveying Unit | MHC-1300EF/1350EF/1500EF/1650EF/1900EF |
| 01. High precision bottom suction paper feeder with non-stop suction nozzle at the bottom, uses vacuum adsorption mechanism to send corrugated board into the paper pressing roller, effectively avoiding sheet scratches during feeding | 〇 |
| 02. Electric side pushing baffles and pneumatic side pushing baffle (right sides) | 〇 |
| 03. Electrically controlled paper feed roller | 〇 |
| 04. Paper Presser and front gauge, double sheet detecter respond accurately | 〇 |
| 05. Front hook adjustment device, paper bending up and down can be adjusted | 〇 |
| 06. Non-stop adjusting device for feeding step | 〇 |
| 07. The fine-tuning device for the front baffle’s front and rear positions can be finely adjusted according to the gripper margin size | 〇 |
| 08. Right and left side positioning push gauge to ensure precise side positioning of the board | 〇 |
| 09. Blow-suction dual-purpose vacuum pump of German Becker brand | 〇 |
| Die-cutting Unit | |
| 01. The entire machine casting is made of QT-700-2 nodular cast iron | 〇 |
| 02. Imported worm gear, worm gear and 40cr crankshaft | 〇 |
| 03. A complete set of imported anodized aluminum alloy gripper bars and positioning structure, fine steel gripper teeth and supporting gripper plates. The gripper bars adopt an adjustable gripper bar structure | 〇 |
| 04. Imported main drive chain | 〇 |
| 05. Imported intermittent splitter | 〇 |
| 06. Imported synchronous belt and pulley drive | 〇 |
| 07. Imported pneumatic clutch brake device | 〇 |
| 08. Pressure regulating device, which can realize accurate control of pressure through PLC touch screen buttons | 〇 |
| 09. Die-cutting pressure is measured directly and accurately by deformation measuring device and displayed on the human-machine interface | 〇 |
| 10. Die-cutting base plate and die mould rotary device | 〇 |
| 11. The connection between the die cutting plate and the chase adopts the form of grasping snail and screws, adopt central positioning system, which is fast and accurate | 〇 |
| 12. The die-cutting chase and the lower mat are locked by the Japan SMC gas regulator, which can prevent improper locking of the upper frame caused by human error during installation | 〇 |
| 13. Japan SMC air pressure detection device, low air pressure alarm | 〇 |
| 14. Equipped with an air storage tank to ensure the stability of the air pressure of the whole machine | 〇 |
| 15. The whole machine adopts a centralized automatic oil supply system to ensure that the transmission parts are not short of oil | 〇 |
| Delivery Unit | |
| 01. Roll-up curtain type auxiliary paper delivery device, can realize non-stop paper delivery | 〇 |
| 02. High pile stacking table adopts lifting device, paper delivery structure can pull the whole pile of paper out of the machine.(Special for high pile stacking delivery) | 〇 |
| 03. Paper delivery alignment device | 〇 |
| 04. Photoelectric detection of upper and lower limit switches can effectively prevent the paper stacking table from excessive paper pile stacking and paper curling up | 〇 |
| 05. Spring chain adjustment device: Adjusting the tension of spring chain can reduce the inertia impact during the steerings of the gripper bar, and maintain the balanced tension of the chain | 〇 |
| Electrical Parts | |
| 01. Self-developed PLC control system(Invention Patent) | 〇 |
| 02. The die-cutting unit adopts 10.4-inch touch display screens | 〇 |
| 03. The machine adopts Germany Moeller brand relays, AC contactors, air switches and buttons, to ensure the stability and reliability of electrical parts | 〇 |
| 04. The machine adopts Japanese Omron brand photoelectric switch, optical fiber, encoder and sensor, to ensure the accuracy and stability of electrical detection of each part of the action | 〇 |
Note: This allocation sheet is for reference only, the formal allocation sheet is subject to the contract. Standard configuration: 〇; Optional: △
| Model | MHC-1300EF | MHC-1350EF | MHC-1500EF | MHC-1650EF | MHC-1900EF |
| Max. Sheet Size | 1290×940mm | 1350×1100mm | 1500×1100mm | 1650×1200mm | 1900×1400mm |
| Min. Sheet Size | 470×450mm | 470×450mm | 470×450mm | 550×500mm | 650×550mm |
| Max. Cutting Size | 1280×920mm | 1330×1080mm | 1480×1080mm | 1620×1180mm | 1870×1380mm |
| Minimum Gripper Margin | 9-17mm | 9-17mm | 9-17mm | 9-17mm | 9-17mm |
| Cutting Rule Height | 23.8mm | 23.8mm | 23.8mm | 23.8mm | 23.8mm |
| Inner Chase Size | 1310×948mm | 1360×1118mm | 1510×1118mm | 1682×1219mm | 1912×1419mm |
| Stock Range | Corrugated board: ≤8.5mm, E, B, C, A and AB corrugated paper | Corrugated board: ≤8.5mm, E, B, C, A and AB corrugated paper | Corrugated board: ≤8.5mm, E, B, C, A and AB corrugated paper | Corrugated board: ≤8.5mm, E, B, C, A and AB corrugated paper | Corrugated board: ≤8.5mm, E, B, C, A and AB corrugated paper |
| Die Cutting Accuracy | ≤±0.15mm | ≤±0.15mm | ≤±0.15mm | ≤±0.2mm | ≤±0.2mm |
| Max. Die Cutting Force | 400T | 400T | 400T | 400T | 450T |
| Max. Working Speed | 5500s/h | 5500s/h | 5500s/h | 4500s/h | 4000s/h |
| Max. Delivery Pile Height | 1400mm (With pallet) | 1400mm (With pallet) | 1400mm (With pallet) | 1400mm (With pallet) | 1500mm (With pallet) |
| Min. Motor Power | 11KW | 15KW | 15KW | 18.5KW | 18.5KW |
| Full Load Wattage | 20KW | 24KW | 24KW | 28KW | 28KW |
| Air Requirement | Pressure: 0.6-0.7Mpa, Flow: ≥0.37m3/min | Pressure: 0.6-0.7Mpa, Flow: ≥0.37m3/min | Pressure: 0.6-0.7Mpa, Flow: ≥0.37m3/min | Pressure: 0.6-0.7Mpa, Flow: ≥0.75m3/min | Pressure: 0.6-0.7Mpa, Flow: ≥0.75m3/min |
| Net Weight of Machine | 20T | 21T | 22T | 24T | 31T |
| Machine Dimension | 7740×5240×2467mm (L: paper prepared track included, W: platform included) | 7969×5240×2434mm (L: paper prepared track included, W: platform included) | 8105×5240×2452mm (L: paper prepared track included, W: platform included) | 8322×5580×2582mm (L: paper prepared track included, W: platform included) | 8900×6260×2525mm(L: paper prepared track included, W: platform included) |






● Non – stop down suck feeder.
● Pneumatic board for sheet trimming.
● Down suck feeding to protect the printing

● Selectable left and right side push lays to ensure accurate alignment.
● Advanced non-stop adjustment of feeding timing, reduce down time.
● Front gauge non-stop back and forth adjustable to accommodate variation in gripper margin.

High-precision imported intermittent splitter, capable of maintaining high positioning accuracy even after long-term use.

Adopt center line system,Upper and lower stripping tool mounting frame can be pulled out for job set up and make ready.

Roll-up type auxiliary paper collection rack, which can realize non-stop paper collection. Delivery unit is also equipped with two-way auxiliary blower for paper collecting, with manual sampling mechanism which is easy to operate.

Adopts electrical components of world famous brands(MOELLER\OMRON) for better performance and in time and local after-sale-service and maintenance.

Blow-suction dual-purpose vacuum pump of German Becker brand.

The whole machine adopts a centralized automatic oil supply system to ensure that the transmission parts are not short of oil.
| Conveying Unit | MHC-1300EFC/1350EFC/1500EFC/1650EFC |
| 01. High precision bottom suction paper feeder with non-stop suction nozzle at the bottom, uses vacuum adsorption mechanism to send corrugated board into the paper pressing roller, effectively avoiding sheet scratches during feeding | 〇 |
| 02. Electric side pushing baffles and pneumatic side pushing baffle (right sides) | 〇 |
| 03. Electrically controlled paper feed roller | 〇 |
| 04. Paper Presser and front gauge, double sheet detecter respond accurately | 〇 |
| 05. Front hook adjustment device, paper bending up and down can be adjusted | 〇 |
| 06. Non-stop adjusting device for feeding step | 〇 |
| 07. The fine-tuning device for the front baffle’s front and rear positions can be finely adjusted according to the gripper margin size | 〇 |
| 08. Right and left side positioning push gauge to ensure precise side positioning of the board | 〇 |
| 09. Blow-suction dual-purpose vacuum pump of German Becker brand | 〇 |
| Die-cutting Unit | |
| 01. The entire machine casting is made of QT-700-2 nodular cast iron | 〇 |
| 02. Imported worm gear, worm gear and 40cr crankshaft | 〇 |
| 03. A complete set of imported anodized aluminum alloy gripper bars and positioning structure, fine steel gripper teeth and supporting gripper plates. The gripper bars adopt an adjustable gripper bar structure | 〇 |
| 04. Imported main drive chain | 〇 |
| 05. Imported intermittent splitter | 〇 |
| 06. Imported synchronous belt and pulley drive | 〇 |
| 07. Imported pneumatic clutch brake device | 〇 |
| 08. Pressure regulating device, which can realize accurate control of pressure through PLC touch screen buttons | 〇 |
| 09. Die-cutting pressure is measured directly and accurately by deformation measuring device and displayed on the human-machine interface | 〇 |
| 10. Die-cutting base plate and die mould rotary device | 〇 |
| 11. The connection between the die cutting plate and the chase adopts the form of grasping snail and screws, adopt central positioning system, which is fast and accurate | 〇 |
| 12. The die-cutting chase and the lower mat are locked by the Japan SMC gas regulator, which can prevent improper locking of the upper frame caused by human error during installation | 〇 |
| 13. Japan SMC air pressure detection device, low air pressure alarm | 〇 |
| 14. Equipped with an air storage tank to ensure the stability of the air pressure of the whole machine | 〇 |
| 15. The whole machine adopts a centralized automatic oil supply system to ensure that the transmission parts are not short of oil | 〇 |
| Stripping Unit | |
| 01. Upper waste transmission mechanism | 〇 |
| 02. Users can choose whether to use the stripping function by lifting upper stripping frame | 〇 |
| 03. Intermediate negative stripping transmission mechanism | 〇 |
| 04. Lower stripping transmission mechanism | 〇 |
| 05. The installation of the middle stripping board adopts the center line quick positioning installation method, enabling the operators to install the stripping board quickly and improving the plate changing efficiency | 〇 |
| Delivery Unit | |
| 01. Roll-up curtain type auxiliary paper delivery device, can realize non-stop paper delivery | 〇 |
| 02. High pile stacking table adopts lifting device, paper delivery structure can pull the whole pile of paper out of the machine.(Special for high pile stacking delivery) | 〇 |
| 03. Paper delivery alignment device | 〇 |
| 04. Photoelectric detection of upper and lower limit switches can effectively prevent the paper stacking table from excessive paper pile stacking and paper curling up | 〇 |
| 05. Spring chain adjustment device: Adjusting the tension of spring chain can reduce the inertia impact during the steerings of the gripper bar, and maintain the balanced tension of the chain | 〇 |
| Electrical Parts | |
| 01. Self-developed PLC control system(Invention Patent) | 〇 |
| 02. The die-cutting unit adopts 10.4-inch touch display screens | 〇 |
| 03. The machine adopts Germany Moeller brand relays, AC contactors, air switches and buttons, to ensure the stability and reliability of electrical parts | 〇 |
| 04. The machine adopts Japanese Omron brand photoelectric switch, optical fiber, encoder and sensor, to ensure the accuracy and stability of electrical detection of each part of the action | 〇 |
Note: This allocation sheet is for reference only, the formal allocation sheet is subject to the contract. Standard configuration: 〇; Optional: △
| Model | MHC-1300EFC | MHC-1350EFC | MHC-1500EFC | MHC-1650EFC |
| Max. Sheet Size | 1290×940mm | 1350×1100mm | 1500×1100mm | 1650×1200mm |
| Min. Sheet Size | 470×450mm | 470×450mm | 470×450mm | 550×500mm |
| Max. Cutting Size | 1280×920mm | 1330×1080mm | 1480×1080mm | 1620×1180mm |
| Min. Gripper Margin | 9-17mm | 9-17mm | 9-17mm | 9-17mm |
| Min. Width of Cuts | 10-18mm | 10-18mm | 10-18mm | 10-18mm |
| Cutting Rule Height | 23.8mm | 23.8mm | 23.8mm | 23.8mm |
| Inner Chase Size | 1310×948mm | 1360×1118mm | 1510×1118mm | 1682×1219mm |
| Stock Range | Corrugated board: ≤8.5mm, E, B, C, A and AB corrugated paper | Corrugated board: ≤8.5mm, E, B, C, A and AB corrugated paper | Corrugated board: ≤8.5mm, E, B, C, A and AB corrugated paper | Corrugated board: ≤8.5mm, E, B, C, A and AB corrugated paper |
| Die Cutting Accuracy | ≤±0.15mm | ≤±0.15mm | ≤±0.15mm | ≤±0.2mm |
| Max. Die Cutting Force | 400T | 400T | 400T | 400T |
| Max. Working Speed | 5500s/h | 5500s/h | 5500s/h | 4500s/h |
| Max. Delivery Pile Height | 1400mm (With pallet) | 1400mm (With pallet) | 1400mm (With pallet) | 1400mm (With pallet) |
| Min. Motor Power | 11KW | 15KW | 15KW | 18.5KW |
| Full Load Wattage | 21KW | 26KW | 26KW | 30KW |
| Air Requirement | Pressure: 0.6-0.7Mpa, Flow: ≥0.37m3/min | Pressure: 0.6-0.7Mpa, Flow: ≥0.37m3/min | Pressure: 0.6-0.7Mpa, Flow: ≥0.37m3/min | Pressure: 0.6-0.7Mpa, Flow: ≥0.75m3/min |
| Machine Weight | 21T | 22T | 23T | 25T |
| Machine Dimension | 8916×5240×2467mm (L: paper prepared track included, W: platform included) | 9380×5240×2435mm (L: paper prepared track included, W: platform included) | 9516×5240×2452mm (L: paper prepared track included, W: platform included) | 9869×5580×2582mm (L: paper prepared track included, W: platform included) |



